Bénéficiez des services de nos partenaires locaux soigneusement sélectionnés
pour vous accompagner dans votre parcours d'achat immobilier

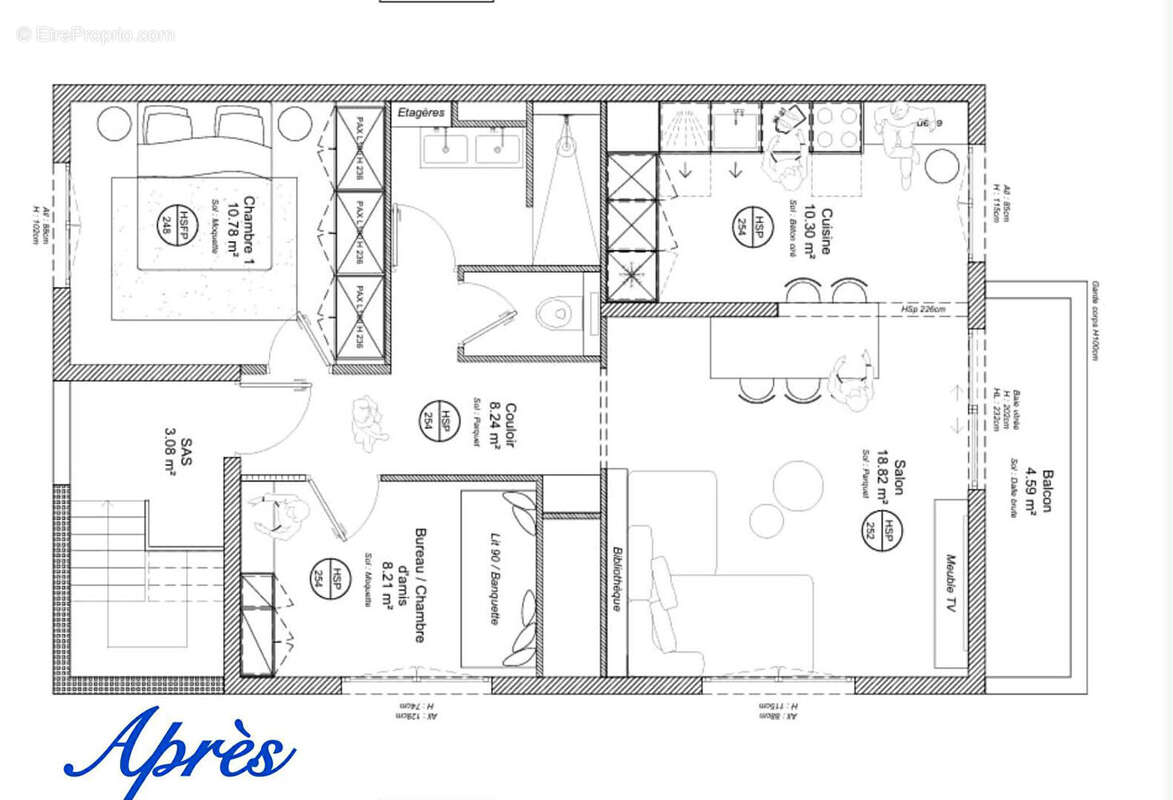
Appartement royan 3 pièce(s) 60 m2

— Royan 17200 —
177 000 €
60 m²
3 pièces

Nos partenaires locaux
A SAISIR ! Appartement T3 à rénover en hyper centre de Royan Situé au coeur de Royan, dans un immeuble emblématique de style Royannais, cet appartement à fort potentiel n'attend que vous pour retrouver son éclat. Niché dans une charmante résidence de 2 étages comprenant 3 logements, il offre une opportunité rare d'investir dans l'authenticité architecturale de la ville. ! Possibilité d'une rénovation sur mesure avec une architecte d'intérieur" Residence" partenaire du projet . Laissez parler votre créativité ou optez pour un projet clé en main, pensé dans les moindres détails. ! Emplacement exceptionnel : tous les commerces, plages et commodités accessibles à pied. !! Informations et détails disponibles à l'agence de LAFORET ROYAN . [Coordonnées masquées] (7.27 % honoraires TTC à la charge de l'acquéreur.)
Voir plus

Référence: 2906
Honoraires d'agence de 7.27% à la charge de l'acquéreur
Barème des honoraires

Prêt immobilier

Vous souhaitez connaître votre capacité d’emprunt et trouver le meilleur crédit immobilier ?
Réaliser une simulation gratuite

Appartement à ROYAN
Appartement à ROYAN
Ce site est protégé par reCAPTCHA la Politique de confidentialité et les Conditions d’utilisation de Google s’appliquent.
Obtenir un prêt immobilier au meilleur taux ?

En poursuivant votre navigation sans modifier vos paramètres, vous acceptez l'utilisation de cookies susceptibles de réaliser des statistiques de visite. Cliquez ici pour plus d'informations