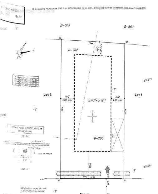
Terrain 795m² à saint-feliu-d'amont

— Saint-Feliu-D'amont 66170 —
186 000 €
795 m²

Iad France - Franck Cheutin vous propose : À vendre à Saint-Féliu-d'Amont : magnifique terrain constructible de 795 m², situé dans une impasse au calme, dans un environnement résidentiel recherché. Ce terrain est vendu avec un permis de construire accordé pour une villa 4 faces de 164 m², pensée pour allier confort, luminosité et intimité.

L'arrière du terrain offre une vue dégagée sur une zone agricole non constructible, garantissant un cadre naturel préservé et sans vis-à-vis. Le terrain, plat et bien exposé, permet une implantation idéale de la future maison.

Situé à seulement quelques minutes de Perpignan, de Thuir et des axes principaux, ce bien représente une opportunité rare pour concrétiser un projet de vie dans un cadre serein, tout en restant proche des commodités.

Honoraires d'agence à la charge du vendeur.
Bien non soumis au DPE. Les informations sur les risques auxquels ce bien est exposé, y compris l'obligation légale de débroussaillement, sont disponibles sur le site Géorisques : http://www.georisques.gouv.fr.
La présente annonce immobilière a été rédigée sous la responsabilité éditoriale de M Franck Cheutin mandataire indépendant en immobilier (sans détention de fonds), agent commercial de la SAS I@D France immatriculé au RSAC de Saint-Cyprien sous le numéro 979514486, titulaire de la carte de démarchage immobilier pour le compte de la société I@D France SAS.
Informations LOI ALUR :
Honoraires charge vendeur. (gedeon_6727_31636703)
Voir plus

Référence: 1814383
Honoraires à la charge du vendeur.

Prêt immobilier

Vous souhaitez connaître votre capacité d’emprunt et trouver le meilleur crédit immobilier ?
Réaliser une simulation gratuite

Photo 1 - Terrain à SAINT-FELIU-D'AMONT
Photo 1
Photo 2 - Terrain à SAINT-FELIU-D'AMONT
Photo 2
Photo 3 - Terrain à SAINT-FELIU-D'AMONT
Photo 3
Ce site est protégé par reCAPTCHA la Politique de confidentialité et les Conditions d’utilisation de Google s’appliquent.
Obtenir un prêt immobilier au meilleur taux ?

En poursuivant votre navigation sans modifier vos paramètres, vous acceptez l'utilisation de cookies susceptibles de réaliser des statistiques de visite. Cliquez ici pour plus d'informations