Projet de rehabiitation avec permis de construire (maison t4, 80m²)

— Saint-Omer 62500 —
50 000 €
85 m² / 126 m²
4 pièces
jardin

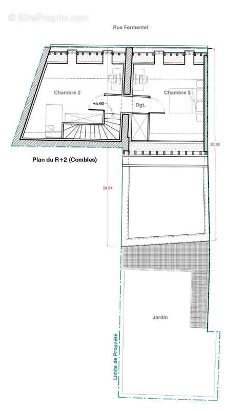
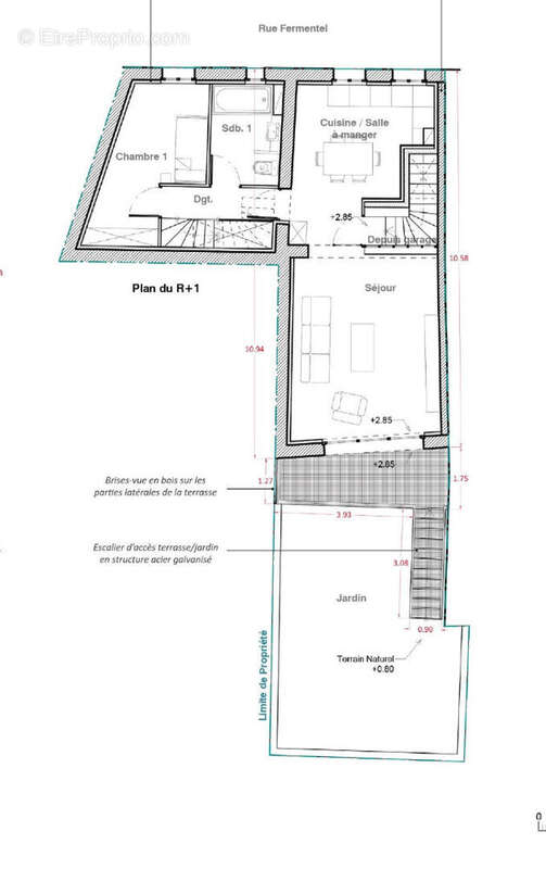
Votre Agence Sixième Avenue de Saint-Omer vous propose cette maison à rehabiliter de près de 100m² avec un permis de construire, à deux pas du centre ville et du jardin public A aménager selon vos envies, découvrez ce bien à rehabiliter en maison T4 de 80m² habitables, avec possibiltié de studio supplémentaire en RDC (un permis a été déjà été déposé). Il pourrait se decomposer comme de cette manière : - Au Rez-de-chaussée : garage vélo, entrée commune, studiode 23m² donnant accès au jardin de près de 40m². - 1er étage : salle à manger, séjour, terrasse chambre et salle de bains - 2eme étage : 2 chambres Vous recherchez un projet idéalement situé en centre ville de Saint-Omer, n'hésitez plus et contactez-nous !
Voir plus

Référence: 660
Honoraires à la charge du vendeur.
Barème des honoraires

Prêt immobilier

Vous souhaitez connaître votre capacité d’emprunt et trouver le meilleur crédit immobilier ?
Réaliser une simulation gratuite

Maison à SAINT-OMER
Maison à SAINT-OMER
Maison à SAINT-OMER
Maison à SAINT-OMER
Maison à SAINT-OMER
Maison à SAINT-OMER
Maison à SAINT-OMER
Ce site est protégé par reCAPTCHA la Politique de confidentialité et les Conditions d’utilisation de Google s’appliquent.
Obtenir un prêt immobilier au meilleur taux ?

En poursuivant votre navigation sans modifier vos paramètres, vous acceptez l'utilisation de cookies susceptibles de réaliser des statistiques de visite. Cliquez ici pour plus d'informations