Bénéficiez des services de nos partenaires locaux soigneusement sélectionnés
pour vous accompagner dans votre parcours d'achat immobilier

Appartement 47m² à leognan

— Leognan 33850 —
194 000 €
47 m²
2 pièces
parking

Nos partenaires locaux
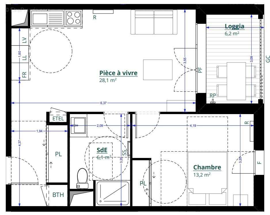
VOTRE NOUVEAU LOGEMENT AU DERNIER ÉTAGE ENTRE VILLE EN NATURE

Situé au coeur de Léognan, dans une résidence calme et bien entretenue, ce charmant appartement T2 se trouve au premier et dernier étage d'un petit bâtiment à taille humaine. Idéalement placé, il bénéficie de la proximité immédiate des commerces, services, écoles et transports, tout en offrant un cadre de vie paisible.

Dès l'entrée, vous serez séduit par une agréable pièce de vie baignée de lumière grâce à sa double exposition, offrant une belle sensation d'espace et de clarté. Cet espace s'ouvre sur une terrasse d'environ 7 m², idéale pour profiter des beaux jours, prendre ses repas à l'extérieur ou créer un coin lecture au calme.
L'appartement dispose d'une grande chambre avec placard intégré, offrant un espace nuit confortable et fonctionnel. Une salle d'eau moderne ainsi qu'un WC indépendant complètent l'ensemble.

Pour plus de confort au quotidien, deux places de parking privatives sont vendues avec l'appartement (6 000€/place soit 12 000€ en sus obligatoire). Ce bien, à la fois pratique et bien situé, conviendra parfaitement à un premier achat, un pied-à-terre ou un investissement locatif de qualité.

VOTRE NOUVEAU LOGEMENT AU DERNIER ÉTAGE ENTRE VILLE EN NATURE



Honoraires à la charge du vendeur. Dans une copropriété de 45 lots. Aucune procédure n'est en cours. Non soumis au DPE. Les informations sur les risques auxquels ce bien est exposé sont disponibles sur le site Géorisques : georisques.gouv.fr.

Votre conseiller RH Patrimoine : Marc VEYRET
Agent commercial (Entreprise individuelle)
Voir plus

Référence: VA3121-RHPATRI
Bien en copropriété. Nombre de lots : 45.
Honoraires à la charge du vendeur.
Barème des honoraires

Prêt immobilier

Vous souhaitez connaître votre capacité d’emprunt et trouver le meilleur crédit immobilier ?
Réaliser une simulation gratuite

Appartement à LEOGNAN
Appartement à LEOGNAN
Appartement à LEOGNAN
Ce site est protégé par reCAPTCHA la Politique de confidentialité et les Conditions d’utilisation de Google s’appliquent.
Obtenir un prêt immobilier au meilleur taux ?

En poursuivant votre navigation sans modifier vos paramètres, vous acceptez l'utilisation de cookies susceptibles de réaliser des statistiques de visite. Cliquez ici pour plus d'informations