Bénéficiez des services de nos partenaires locaux soigneusement sélectionnés
pour vous accompagner dans votre parcours d'achat immobilier

Nice centre – t2 traversant avec balcon – idéal investissement - faibles charges !

— Nice 06000 —
193 000 €
37 m²
2 pièces
balcon/terrasse

Nos partenaires locaux
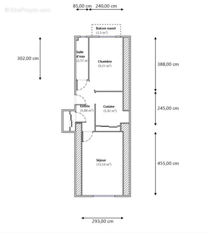
Situé dans un quartier recherché à proximité immédiate du centre-ville de Nice, cet appartement 2 pièces traversant d’environ 36 m² se trouve au 3e étage d’un immeuble niçois sans ascenseur.
A seulement 5 minutes à pied des commerces, transports (bus, tramway, gare SNCF) et plusieurs établissements d’enseignement supérieur (IPAG, ESCOM…).

Ce bien sans vis-à-vis se compose :

- d’un hall d’entrée avec nombreux rangements

- d’un séjour lumineux

- d’une chambre au calme avec balcon sur cour intérieure

- d’une cuisine indépendante

- et d’une salle d’eau avec WC


Confort & Performances :
Double vitrage sur l’ensemble des fenêtres pour un confort acoustique et isolation thermique.

Climatisation réversible déjà installée.

Faibles charges de copropriété 54€, idéales pour optimiser le rendement.

Fort potentiel d’aménagement :
Plan en étoile avec cloisons non porteuses, permettant de repenser facilement l’espace selon vos besoins

Possibilité de transformation en deux studettes indépendantes (sous réserve d’autorisations), parfaitement adapté à de la location meublée ou saisonnière.

À noter
Des travaux sont à prévoir afin de remettre le bien au goût du jour et valoriser pleinement son potentiel locatif.

Idéal investisseurs à la recherche d’un bien à fort rendement locatif, dans un secteur central, dynamique et très recherché par les étudiants, jeunes actifs et touristes.

Contactez nous dès maintenant pour organiser une visite et découvrir le potentiel de ce bien rare sur le marché !


Bien soumis au statut de la copropriété - Nb de lots d'habitation : 16 lots
Charges mensuelles : 54 € (eau froide, entretien des parties communes inclus, chauffage et eau chaude individuel )
Taxe foncière : 772 € /an
Honoraires à la charge du vendeur.

Les informations sur les risques auxquels ce bien est exposé sont disponibles sur le site Géorisques : georisques.gouv.fr
Voir plus

Référence: 2594
Barème des honoraires
DPE
A
B
C
D
E
F
G
GES
A
B
C
D
E
F
G

Prêt immobilier

Vous souhaitez connaître votre capacité d’emprunt et trouver le meilleur crédit immobilier ?
Réaliser une simulation gratuite

Appartement à NICE
Appartement à NICE
Appartement à NICE
Appartement à NICE
Appartement à NICE
Appartement à NICE
Appartement à NICE
Appartement à NICE
Appartement à NICE
Ce site est protégé par reCAPTCHA la Politique de confidentialité et les Conditions d’utilisation de Google s’appliquent.
Obtenir un prêt immobilier au meilleur taux ?

En poursuivant votre navigation sans modifier vos paramètres, vous acceptez l'utilisation de cookies susceptibles de réaliser des statistiques de visite. Cliquez ici pour plus d'informations