Bénéficiez des services de nos partenaires locaux soigneusement sélectionnés
pour vous accompagner dans votre parcours d'achat immobilier

Appartement

— Perpignan 66000 —
185 000 €
70 m²
3 pièces
parkingbalcon/terrasse

Nos partenaires locaux
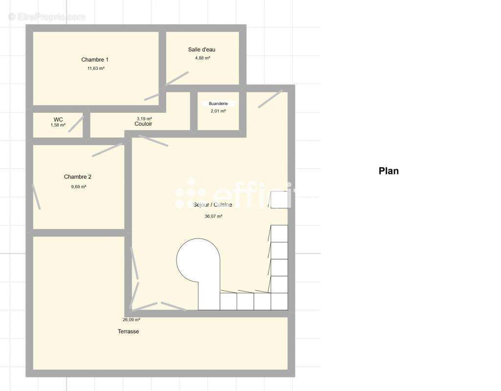
66000 PERPIGNAN – APPARTEMENT T3 + TERRASSE – QUARTIER PORTE D'ESPAGNE – VUE CANIGOU

Jennifer Efficity, votre consultante qui estime votre bien en ligne, vous propose cet appartement T3 situé à Perpignan, dans le quartier très recherché de Porte d'Espagne. Au 1er étage d'une résidence sécurisée (sans ascenseur), ce bien de 70 m² vous séduira par ses prestations et sa vue dégagée sur le Canigou et les Albères.

Caractéristiques principales :
* Entrée avec placard
* Pièce de vie lumineuse de 34 m²
* Cuisine équipée avec électroménager intégré, dont cave à vin
* 2 chambres avec placard
* Salle d'eau
* WC indépendant
* Buanderie
* Terrasse en L de 26 m² avec vue dégagée
* Garage + place de parking privative

Caractéristiques techniques :
* Résidence sécurisée
* Climatisation dans séjour et chambres
* Volets roulants électriques
* Double vitrage
* Visiophone
* Fibre optique
* Ballon d'eau chaude thermodynamique 150L
* Charges de copropriété : 84 € / mois
* Taxe foncière : 1414 €
* Potentiel locatif : 900 € / mois

Description détaillée :
Cet appartement traversant, bien agencé et confortable, se trouve à proximité immédiate des commodités, commerces et axes routiers. La pièce de vie donne sur une belle terrasse de 26 m² en L, idéale pour profiter des extérieurs avec une superbe vue dégagée. La cuisine entièrement équipée, ravira les amateurs de bons repas. Le coin nuit comprend deux chambres avec placard, une salle d'eau moderne, une buanderie fonctionnelle et un WC séparé. Les prestations techniques assurent un confort optimal été comme hiver. Une déviation routière prévue dans les années à venir améliorera encore davantage le cadre de vie.

Localisation :
Porte d'Espagne à Perpignan – accès rapide aux plages, à l'Espagne et au centre-ville.

Jennifer Efficity vous accompagne dans toutes les étapes de votre projet avec réactivité, écoute et implication. Parlons ensemble de votre projet immobilier ! N'hésitez pas à me contacter par téléphone, par mail ou via mes réseaux sociaux (Facebook et Instagram).

*******
Les informations sur les risques auxquels ce bien est exposé sont disponibles sur le site Georisque : georisques. gouv. fr
Jennifer Sauget-Balleydier - EI - est Agent Commercial mandataire en immobilier, immatriculé au Registre Spécial des Agents Commerciaux du Tribunal de Commerce de Perpignan sous le n°534887732.
Siège social du mandant : effiCity, 48 avenue de Villiers - 75017 PARIS - Société par Actions Simplifiée, société au capital de 132 373,05 euros, immatriculée au RCS Paris 497 617 746 et titulaire de la Carte professionnelle CPI 75[Coordonnées masquées]02 025 - CCI Paris IDF - Caisse de Garantie : GALIAN Assurances 89 rue de la Boétie 75008 Paris
Voir plus

Référence: 190069
Bien en copropriété. Nombre de lots : 5. Charges de copropriété : 81 €.
Honoraires à la charge du vendeur.
Barème des honoraires
DPE
A
B
C
D
E
F
G
GES
A
B
C
D
E
F
G

Prêt immobilier

Vous souhaitez connaître votre capacité d’emprunt et trouver le meilleur crédit immobilier ?
Réaliser une simulation gratuite

Appartement à PERPIGNAN
Appartement à PERPIGNAN
Appartement à PERPIGNAN
Appartement à PERPIGNAN
Appartement à PERPIGNAN
Appartement à PERPIGNAN
Appartement à PERPIGNAN
Appartement à PERPIGNAN
Appartement à PERPIGNAN
Appartement à PERPIGNAN
Appartement à PERPIGNAN
Appartement à PERPIGNAN
Appartement à PERPIGNAN
Appartement à PERPIGNAN
Appartement à PERPIGNAN
Appartement à PERPIGNAN
Appartement à PERPIGNAN
Appartement à PERPIGNAN
Appartement à PERPIGNAN
Appartement à PERPIGNAN
Ce site est protégé par reCAPTCHA la Politique de confidentialité et les Conditions d’utilisation de Google s’appliquent.
Obtenir un prêt immobilier au meilleur taux ?

En poursuivant votre navigation sans modifier vos paramètres, vous acceptez l'utilisation de cookies susceptibles de réaliser des statistiques de visite. Cliquez ici pour plus d'informations