Bénéficiez des services de nos partenaires locaux soigneusement sélectionnés
pour vous accompagner dans votre parcours d'achat immobilier

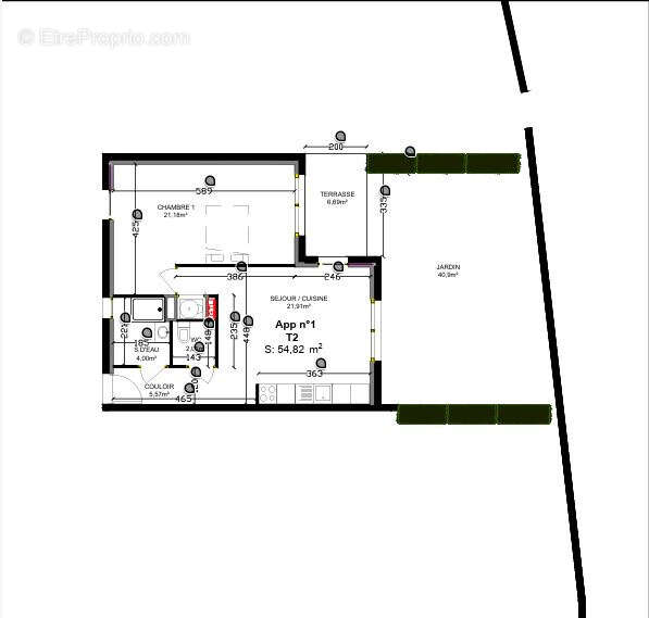
Saint-raphaël - appartement 55 m2 2 pièces en rez-de-jardin

— Saint-Raphael 83700 —
349 650 €
55 m²
2 pièces
parkingbalcon/terrasse

Nos partenaires locaux
Quartier de Boulouris - Ce charmant 2 pièces de 55 m2, situé en rez-de-chaussée, offre un cadre de vie idéal entre intérieur moderne et extérieur privé. Il se compose :
- D’un séjour lumineux avec cuisine ouverte
- D’une chambre spacieuse
- D’une salle de bains tout confort avec douche à l’italienne
- D’un WC indépendant
- D’un espace extérieur généreux de 6.69 m2 : terrasse + jardin privatif : 40.09
- D’un espace extérieur généreux de 21.5 m2 : terrasse + jardin privatif : 155 m2
Parking en sous-sol disponible en supplément : 20 000 €
Ce bien est parfait pour une résidence principale, secondaire ou un investissement locatif. Contactez-nous dès maintenant pour plus d’informations ou pour organiser une visite.
Résidence située à 10 minutes de la mer, résidence contemporaine à taille humaine, composée de seulement 6 appartements, du 2 au 3 pièces, répartis sur deux niveaux avec ascenseur. Chaque appartement bénéficie de beaux volumes lumineux grâce à de larges baies vitrées et d’un espace extérieur.
L’architecture moderne et élégante s’intègre harmonieusement dans son environnement naturel et préservé, cette résidence allie confort, praticité et qualité de vie.
Prestations haut de gamme :
- Climatisation réversible gainable
- Salle de bains avec baignoire ou douche à l’italienne, meuble vasque avec miroir et WC suspendu
- Volets roulants motorisés en aluminium (anthracite et blanc)
- Double vitrage
- Ascenseur
- Stationnements en sous-sol
- Frais de notaire réduits
Les informations sur les risques auxquels ce bien est exposé sont disponibles sur le site Géorisques : www.georisques.gouv.fr
Voir plus

Référence: 1128-A01
Bien en copropriété. Nombre de lots : 6.
Honoraires à la charge du vendeur.
Barème des honoraires

Prêt immobilier

Vous souhaitez connaître votre capacité d’emprunt et trouver le meilleur crédit immobilier ?
Réaliser une simulation gratuite

Appartement à SAINT-RAPHAEL
Appartement à SAINT-RAPHAEL
Appartement à SAINT-RAPHAEL
Ce site est protégé par reCAPTCHA la Politique de confidentialité et les Conditions d’utilisation de Google s’appliquent.
Obtenir un prêt immobilier au meilleur taux ?

En poursuivant votre navigation sans modifier vos paramètres, vous acceptez l'utilisation de cookies susceptibles de réaliser des statistiques de visite. Cliquez ici pour plus d'informations