Bénéficiez des services de nos partenaires locaux soigneusement sélectionnés
pour vous accompagner dans votre parcours d'achat immobilier

Maison 95m² à chaudon

— Chaudon 28210 —
199 900 €
95 m² / 873 m²
5 pièces
parkingbalcon/terrassejardin

Nos partenaires locaux
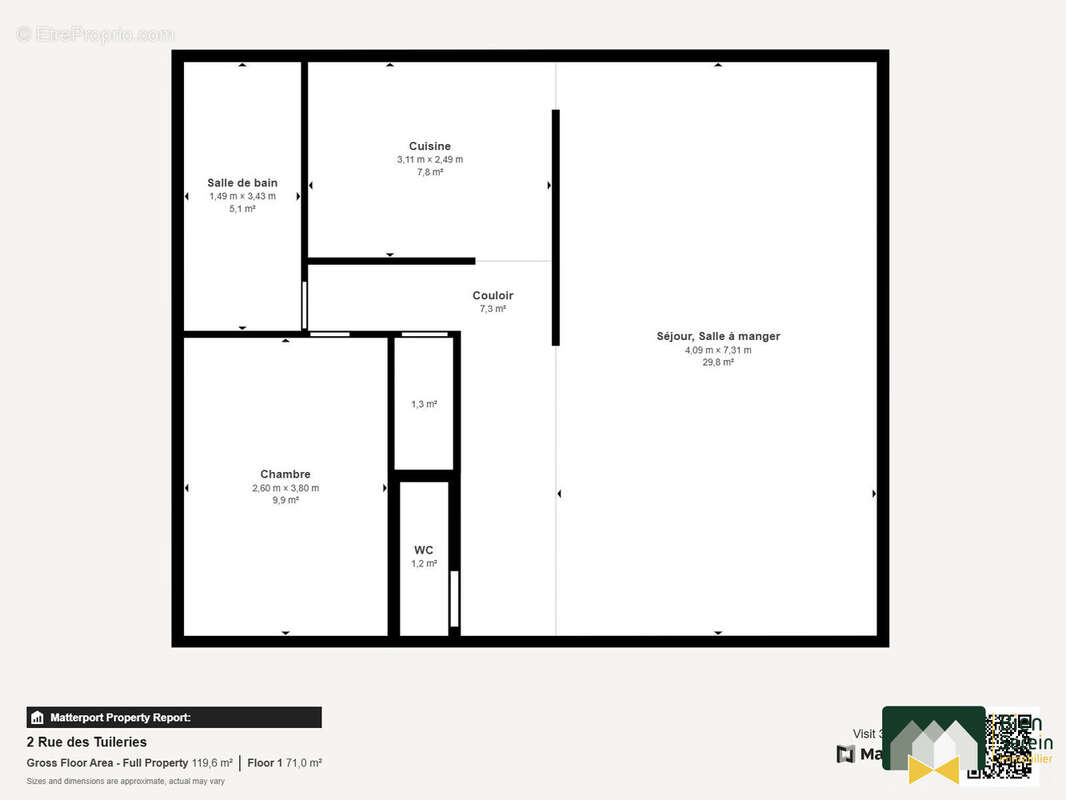
MAISON DANS ENVIRONEMENT CALME AVEC JARDIN ET TERRASSE - 95 m²

Maison individuelle de 95,08 m² situé dans un environnement calme et sans vis-à-vis, alliant charme de l'ancien et le confort moderne.


?Details de la maison :

Au rez-de-chaussée :

- Entrée
- Salon, salle à manger
- Cuisine aménagée et équipée
- Chambre
- Salle de bain
- WC indépendant

Au 1er étage :

- Deux grandes chambres dont une suite parentale
- WC indépendant

?Espace extérieur :

- Jardin clos
- Terrasse
- Cabane de jardin
- Garage de 15m²

?Côté confort :

- Vue dégagée sans vis-à-vis
- Poêle à granulés
- Vivable de plain-pied

?L'emplacement

Située dans un quartier paisible, cette maison est proche de toutes les commodités. À seulement 5 minutes à pied, vous trouverez une maternelle et une école élémentaire, tandis qu'un collège est accessible en 5 minutes en voiture. Plusieurs médecins généralistes sont également disponibles à 5 minutes en voiture. Un bus est accessible en 10 minutes à pied, et une crèche se trouve à 5 minutes en voiture.

Honoraires à la charge du vendeur. Classe énergie D, Classe climat B Montant estimé des dépenses annuelles d'énergie pour un usage standard : entre 1790.00 € et 2422.00 € sur les années 2021, 2022 et 2023 (abonnements compris). Les informations sur les risques auxquels ce bien est exposé sont disponibles sur le site Géorisques : georisques.gouv.fr.
Voir plus

Référence: 654-BIENSEREIN28
Honoraires à la charge du vendeur.
Barème des honoraires
DPE
A
B
C
D
E
F
G
GES
A
B
C
D
E
F
G

Prêt immobilier

Vous souhaitez connaître votre capacité d’emprunt et trouver le meilleur crédit immobilier ?
Réaliser une simulation gratuite

Maison à CHAUDON
Maison à CHAUDON
Maison à CHAUDON
Maison à CHAUDON
Maison à CHAUDON
Maison à CHAUDON
Maison à CHAUDON
Maison à CHAUDON
Maison à CHAUDON
Ce site est protégé par reCAPTCHA la Politique de confidentialité et les Conditions d’utilisation de Google s’appliquent.
Obtenir un prêt immobilier au meilleur taux ?

En poursuivant votre navigation sans modifier vos paramètres, vous acceptez l'utilisation de cookies susceptibles de réaliser des statistiques de visite. Cliquez ici pour plus d'informations