Appartement 127m² à praz-sur-arly

— Praz-Sur-Arly 74120 —
1 052 000 €
127 m²
6 pièces
parkingbalcon/terrasse

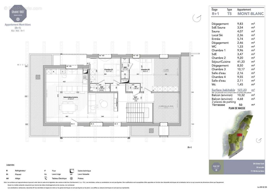
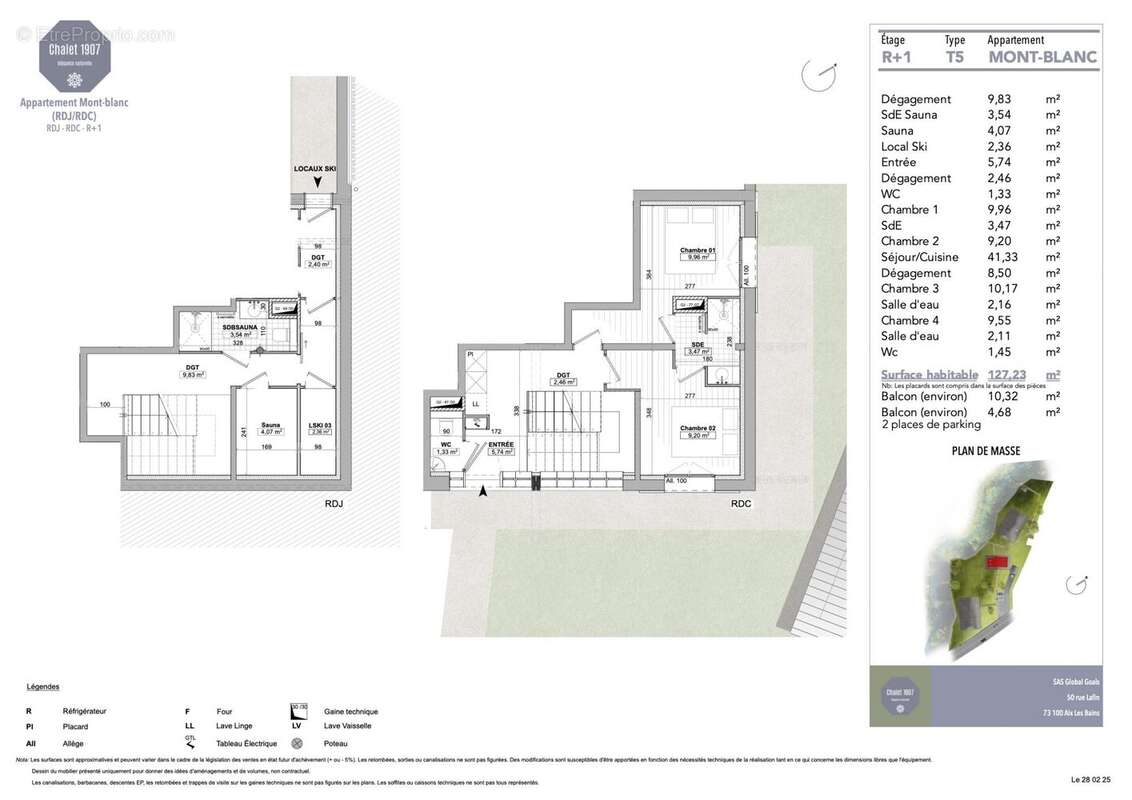
Appartement type T5 en triplex à vendre dans un magnifique projet immobilier composé de 3 appartements sur un terrain de 1500m2 en coeur de village à Praz sur Arly.
Centre du village, remontées mécaniques et plan d'eau à proximité du chalet.
L'appartement comprend :
- Au sous-sol : 1 local à skis avec accès extérieur ; 1 sauna ; sanitaires et dégagements
- Au rez-de-chaussée : 1 entrée avec vestiaire ; toilettes invités ; 2 chambres double ; 1 salle de douche et dégagement
- A l'étage desservi par un magnifique escalier : 2 chambres avec salles de douche en suite (dont 1 avec balcon et l'autre avec soupente) ; 1 espace libre (salle de jeux ?) ; toilettes ; 1 grand séjour, cuisine et salle à manger (+ de 41 m2) ouvert sur balcon face village et pistes.
2 places de parking couvert viennent compléter cette offre.

Prestations haut de gamme:
- Carrelage grand format pour les pièces de vie
- Parquet et placards dans les chambres.
- Salles de bains faïencées et équipées
- Chauffage avec plancher chauffant et porte intérieures en bois massif et visio-phone.
- Parking en sous-sol - Cave et local à ski individuel.
- Spacieux balcons pour chaque appartement.

Mon 'coup de coeur' pour ce bien : l'emplacement idéal dans le centre du village ainsi que l'aspect général du chalet (Henri Jacques Le Même) identifié 'remarquable' par la commune.



Honoraires inclus de 3.09% TTC à la charge de l'acquéreur. Prix hors honoraires 1 020 440 €. Dans une copropriété de 10 lots. Aucune procédure n'est en cours. DPE en cours. Les informations sur les risques auxquels ce bien est exposé sont disponibles sur le site Géorisques : georisques.gouv.fr. .
Les informations sur les risques auxquels ce bien est exposé sont disponibles sur le site Géorisques : georisques. gouv. fr.

Voir plus

Référence: 160651-AMI74
Bien en copropriété. Nombre de lots : 10.
Honoraires d'agence de 3.09% à la charge de l'acquéreur
Barème des honoraires

Prêt immobilier

Vous souhaitez connaître votre capacité d’emprunt et trouver le meilleur crédit immobilier ?
Réaliser une simulation gratuite

Appartement à PRAZ-SUR-ARLY
Appartement à PRAZ-SUR-ARLY
Appartement à PRAZ-SUR-ARLY
Appartement à PRAZ-SUR-ARLY
Appartement à PRAZ-SUR-ARLY
Appartement à PRAZ-SUR-ARLY
Ce site est protégé par reCAPTCHA la Politique de confidentialité et les Conditions d’utilisation de Google s’appliquent.
Obtenir un prêt immobilier au meilleur taux ?

En poursuivant votre navigation sans modifier vos paramètres, vous acceptez l'utilisation de cookies susceptibles de réaliser des statistiques de visite. Cliquez ici pour plus d'informations