Bénéficiez des services de nos partenaires locaux soigneusement sélectionnés
pour vous accompagner dans votre parcours d'achat immobilier

Pornichet, villa proche du centre et de la plage

— Pornichet 44380 —
854 900 €
170 m² / 780 m²
7 pièces
parkingbalcon/terrassejardin

Nos partenaires locaux
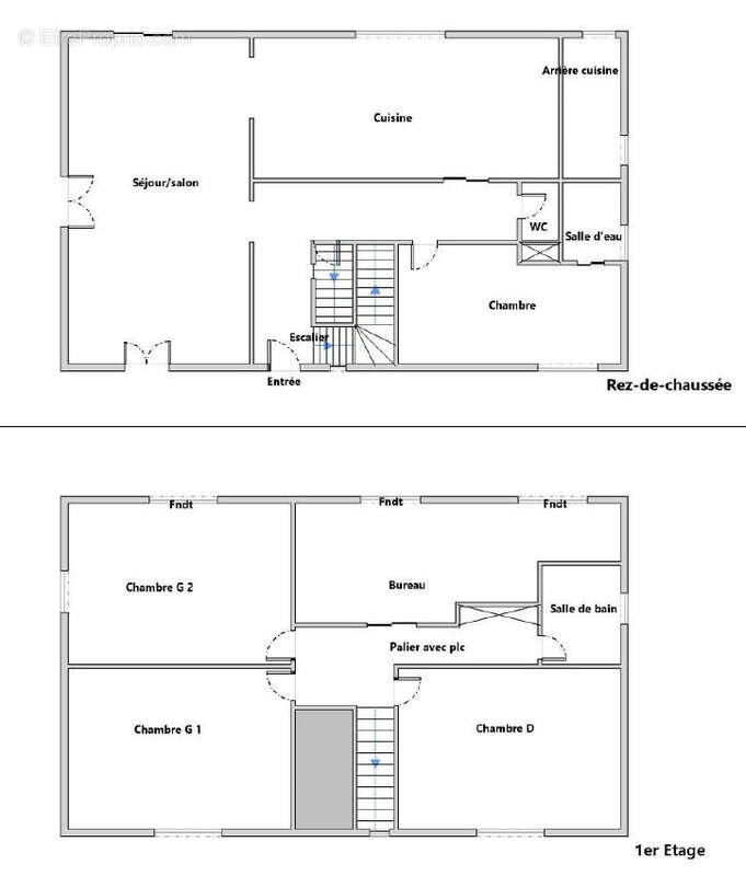
PORNICHET, villa proche du centre et de la plage.
À seulement 900 mètres du centre de Pornichet et 850 mètres de la plage, cette maison rénovée en 2017 offre un cadre de vie idéal entre mer et commodités. Implantée sur une parcelle paysagée de 780 m2, entièrement close et arborée avec abri de jardin, elle développe environ 170 m2 habitables auxquels s’ajoute un sous-sol de 60 m2 comprenant un garage. Dès l’entrée, vous serez séduit par les volumes et la qualité des prestations. Le rez-de-chaussée accueille un vaste hall, un séjour traversant baigné de lumière avec cheminée insert, une cuisine indépendante entièrement équipée, prolongée par une arrière-cuisine avec accès direct au jardin, une suite parentale avec rangements et sa salle d'eau attenante, un WC suspendu avec lave-mains. À l’étage, l’espace nuit se compose de trois grandes chambres, d’une salle de bains avec WC, et d’une pièce mansardée aménagée en salle de jeux et bureau — un espace polyvalent, parfait pour le télétravail ou les loisirs. Entièrement rénovée avec goût et dans un état irréprochable, cette maison allie confort moderne, volumes généreux et localisation privilégiée à proximité des commerces, du marché, des écoles et des plages. Une opportunité rare à Pornichet, dans un secteur recherché.
Voir plus

Référence: 558
Honoraires d'agence de 3% à la charge de l'acquéreur
Barème des honoraires
DPE
A
B
C
D
E
F
G
GES
A
B
C
D
E
F
G

Prêt immobilier

Vous souhaitez connaître votre capacité d’emprunt et trouver le meilleur crédit immobilier ?
Réaliser une simulation gratuite

Maison à PORNICHET
Maison à PORNICHET
Maison à PORNICHET
Maison à PORNICHET
Maison à PORNICHET
Maison à PORNICHET
Maison à PORNICHET
Maison à PORNICHET
Maison à PORNICHET
Maison à PORNICHET
Maison à PORNICHET
Maison à PORNICHET
Maison à PORNICHET
Maison à PORNICHET
Maison à PORNICHET
Maison à PORNICHET
Maison à PORNICHET
Maison à PORNICHET
Maison à PORNICHET
Maison à PORNICHET
Maison à PORNICHET
Maison à PORNICHET
Maison à PORNICHET
Maison à PORNICHET
Maison à PORNICHET
Ce site est protégé par reCAPTCHA la Politique de confidentialité et les Conditions d’utilisation de Google s’appliquent.
Obtenir un prêt immobilier au meilleur taux ?

En poursuivant votre navigation sans modifier vos paramètres, vous acceptez l'utilisation de cookies susceptibles de réaliser des statistiques de visite. Cliquez ici pour plus d'informations