Antibes proche plage, appartement 2-pièces dernier etage, terrasse et piscine

— Antibes 06160 —
280 000 €
39 m²
2 pièces
parkingbalcon/terrasseascenseurpiscine

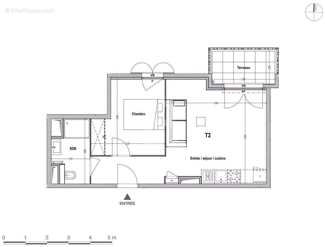
A proximité des plages (accessibles à pied), des commerces, transports et des pôles économiques, au sein de cette résidence à l'architecture moderne et élégante dotée d'une piscine avec pool house au coeur d'un beau jardin paysager, nous vous proposons cet appartement de type 2 pièces en dernier étage disposant d'une petite terrasse.

Cet appartement se compose d'une entrée desservant un séjour avec cuisine américaine s'ouvrant sur sa terrasse, d'une chambre à coucher avec placard et d'une salle d'eau avec toilettes.

Cet appartement dispose également d'un parking ainsi que d'une cave. Honoraires à la charge du vendeur - Nombre de lots dans la copropriété: 58 - Les informations sur les risques auxquels ce bien est exposé sont disponibles sur le site Géorisques : www.georisques.gouv.fr
Voir plus

Référence: 86119735
Bien en copropriété. Nombre de lots : 58.
Honoraires à la charge du vendeur.

Prêt immobilier

Vous souhaitez connaître votre capacité d’emprunt et trouver le meilleur crédit immobilier ?
Réaliser une simulation gratuite

Appartement à ANTIBES
Appartement à ANTIBES
Appartement à ANTIBES
Appartement à ANTIBES
Ce site est protégé par reCAPTCHA la Politique de confidentialité et les Conditions d’utilisation de Google s’appliquent.
Obtenir un prêt immobilier au meilleur taux ?

En poursuivant votre navigation sans modifier vos paramètres, vous acceptez l'utilisation de cookies susceptibles de réaliser des statistiques de visite. Cliquez ici pour plus d'informations