Bénéficiez des services de nos partenaires locaux soigneusement sélectionnés
pour vous accompagner dans votre parcours d'achat immobilier

Découvrez cet appartement avec terrasse

— Villiers-Sur-Marne 94350 —
249 000 €
73 m²
3 pièces
balcon/terrasse

Nos partenaires locaux
Nouveau à Villiers-Sur-Marne !

*DEVENEZ PRIORITAIRE D'UN APPARTEMENT 3 PIECES à VILLIERS-SUR-MARNE*
//Terrasse // Emplacement idéal// Place de parking //

*QUARTIER : À seulement 12 km de la porte de Bercy, ce logement bénéficie d'un emplacement stratégique, desservi par l'autoroute A4, le RER E, plusieurs lignes de bus et la future ligne 15 du Grand Paris Express. Il est également situé à proximité immédiate des commerces, d'une crèche, d'écoles, d'un cinéma, et du marché couvert.

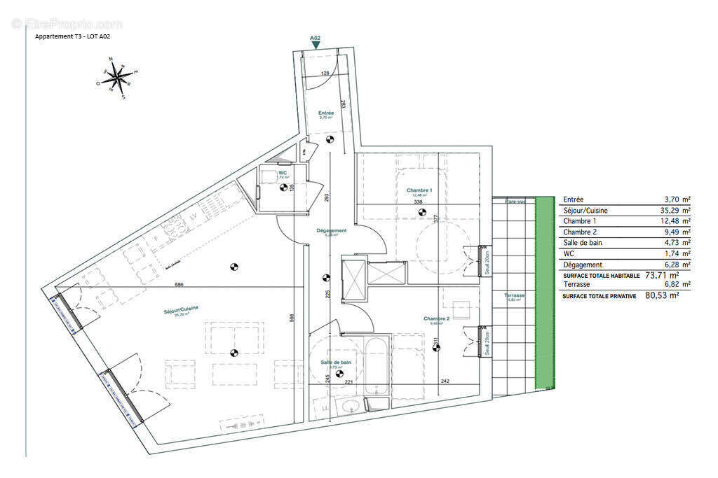
*LOGEMENT : Appartement 3 pièces de 73.71 m² offrant un grand séjour de 35.29m² avec cuisine ouverte, deux chambres de 9.49m² et 12.48m², des placards de rangement, une salle de bains et un WC indépendant. Une terrasse de 6.82m² et une place de parking complètent ce bien.

Contactez-nous dès maintenant !

Les informations sur les risques auxquels ce bien est exposé sont disponibles sur le site Géorisques : www. georisques. gouv. fr
Voir plus

Référence: 94-22-004483

Prêt immobilier

Vous souhaitez connaître votre capacité d’emprunt et trouver le meilleur crédit immobilier ?
Réaliser une simulation gratuite

Appartement à VILLIERS-SUR-MARNE
Appartement à VILLIERS-SUR-MARNE
Appartement à VILLIERS-SUR-MARNE
Appartement à VILLIERS-SUR-MARNE
Ce site est protégé par reCAPTCHA la Politique de confidentialité et les Conditions d’utilisation de Google s’appliquent.
Obtenir un prêt immobilier au meilleur taux ?

En poursuivant votre navigation sans modifier vos paramètres, vous acceptez l'utilisation de cookies susceptibles de réaliser des statistiques de visite. Cliquez ici pour plus d'informations