Corps de ferme avec terre et lac

— Montjoi 82400 —
299 000 €
200 m² / 5 885 m²
5 pièces
parking

Authentique corps de ferme à Montjoie, proche de Valence d'Agen et Agen

Découvrez ce magnifique corps de ferme situé au cœur de la commune de Montjoie, un véritable havre de paix niché dans un cadre naturel exceptionnel. Ce bien rare s'étend sur 28 hectares de terres agricoles, prairies.bois,lac offrant de multiples possibilités pour les amateurs de nature, d'élevage ou de projets agricoles.

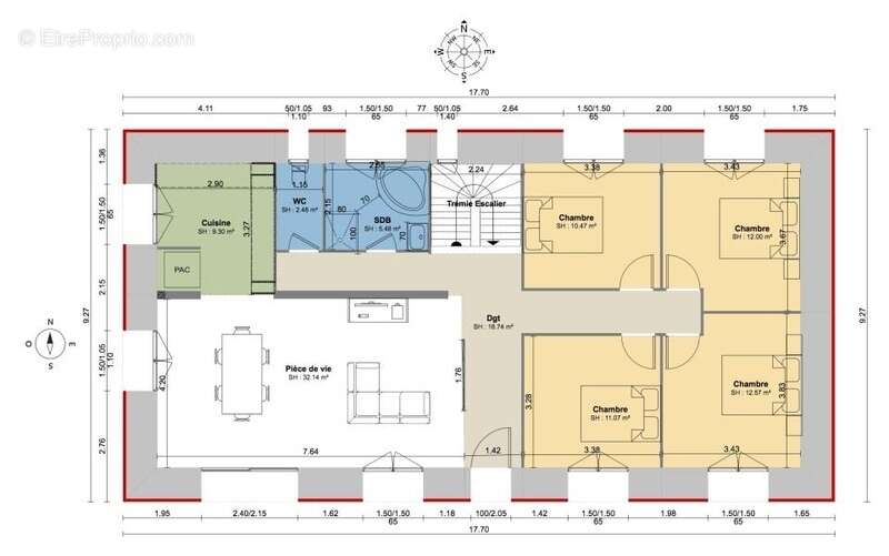
La propriété se compose d'une maison principale de 120 m², avec un fort potentiel d'aménagement grâce à son grenier de 120 m² facilement aménageable. Les dépendances attenantes et communiquant à la maison, une bâtisse de 60 m² , peuvent également être transformées pour agrandir l'espace de vie, accueillir des gîtes ou des logements supplémentaires.

Côté exploitation agricole, le bien comprend également :

Un hangar récent de 130 m², idéal pour le stockage du matériel ou l'aménagement d'espaces supplémentaires,
Une grange spacieuse de 263 m², parfaite pour les projets de rénovation, de stockage ou d'activités agricoles.
Cette propriété offre un cadre de vie exceptionnel avec ses vastes espaces verts et boisés, parfait pour les amoureux de la campagne et de grands espaces. Vous profiterez d'une vue dégagée et d'une tranquillité absolue, tout en étant à proximité de Valence d'Agen (à environ 20 minutes) et d'Agen (à environ 45 minutes).

Points forts :

Grande superficie de terrains (28 ha),
Dépendances aménageables, idéal pour projets familiaux ou professionnels,
Proche des commodités tout en restant dans un cadre paisible et isolé,
Potentiel pour création de gîtes, chambres d'hôtes ou exploitation agricole.
Les honoraires d'agence sont à la charge de l'acquéreur, soit 6,79% TTC du prix hors honoraires.
Les informations sur les risques auxquels ce bien est exposé sont disponibles sur le site Géorisques : www. georisques. gouv. fr.

Réseau Immobilier CAPIFRANCE - Votre agent commercial (RSAC N°987 655 867 - Greffe de AGEN) Sebastien MONSET Entrepreneur Individuel [Coordonnées masquées] - Réf.916415
Voir plus

Référence: 340937186765

Prêt immobilier

Vous souhaitez connaître votre capacité d’emprunt et trouver le meilleur crédit immobilier ?
Réaliser une simulation gratuite

Maison à MONTJOI
Maison à MONTJOI
Maison à MONTJOI
Maison à MONTJOI
Maison à MONTJOI
Maison à MONTJOI
Maison à MONTJOI
Maison à MONTJOI
Maison à MONTJOI
Maison à MONTJOI
Maison à MONTJOI
Maison à MONTJOI
Maison à MONTJOI
Maison à MONTJOI
Maison à MONTJOI
Maison à MONTJOI
Maison à MONTJOI
Maison à MONTJOI
Maison à MONTJOI
Maison à MONTJOI
Maison à MONTJOI
Maison à MONTJOI
Ce site est protégé par reCAPTCHA la Politique de confidentialité et les Conditions d’utilisation de Google s’appliquent.
Obtenir un prêt immobilier au meilleur taux ?

En poursuivant votre navigation sans modifier vos paramètres, vous acceptez l'utilisation de cookies susceptibles de réaliser des statistiques de visite. Cliquez ici pour plus d'informations