Appartement 59m² à brignais

— Brignais 69530 —
260 000 €
59 m²
3 pièces
balcon/terrasseascenseuraccès handicapé

SOUS PROMESSE DE VENTE !
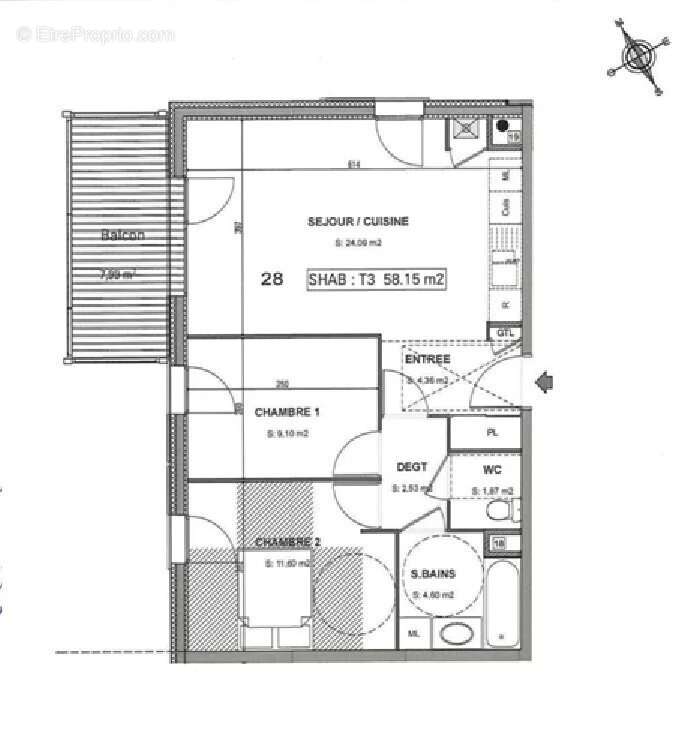
APPARTEMENT SOUS COMPROMIS DE VENTE ! 69530 BRIGNAIS - APPARTEMENT DE TYPE 3 AVEC BALCON ET 2 PLACES DE PARKING DANS IMMEUBLE RECENT. L’Agence 19CENT86 Immobilier & Placements vous propose cet appartement de type 3, d’une surface de 59,02 m² Carrez, situé au 2ème étage sur 3 avec ascenseur d’une copropriété de standing de 2014. Il se compose d’une pièce à vivre de 28,63 m², avec cuisine équipée, exposée Nord-Ouest, donnant sur le balcon de 8,18 m². Le coin nuit est séparé et dispose de 2 chambres (12,02 m² et 9,27 m²), d’une salle de bains et WC séparé.
Deux places de parking en sous-sol situées côte à côte, pouvant être fermées, viennent le compléter.
Idéalement situé au calme, à proximité des commerces, des écoles et des transports.
Bien soumis au régime de la copropriété avec 64 lots dont 25 appartements.
Budget annuel charges 1717,68 euros soit 143 euros par mois – Consommations énergétiques : C (74) / GES : C (13). Estimation des coûts annuels d’énergie du logement entre 480 euros et 710 euros par an - Année de référence : 2021, 2022, 2023 - Honoraires charge vendeur - Pas de procédure en cours. Les informations sur les risques auxquels ce bien est exposé sont disponibles sur le site Géorisques : www.georisques.gouv.fr - Pour plus d'informations, merci de contacter Nicolas MAIA, par mail ou par téléphone.
Voir plus

Référence: 1986336
Barème des honoraires
DPE
A
B
C
D
E
F
G
GES
A
B
C
D
E
F
G

Prêt immobilier

Vous souhaitez connaître votre capacité d’emprunt et trouver le meilleur crédit immobilier ?
Réaliser une simulation gratuite

Appartement à BRIGNAIS
Appartement à BRIGNAIS
Appartement à BRIGNAIS
Appartement à BRIGNAIS
Appartement à BRIGNAIS
Appartement à BRIGNAIS
Appartement à BRIGNAIS
Appartement à BRIGNAIS
Appartement à BRIGNAIS
Ce site est protégé par reCAPTCHA la Politique de confidentialité et les Conditions d’utilisation de Google s’appliquent.
Obtenir un prêt immobilier au meilleur taux ?

En poursuivant votre navigation sans modifier vos paramètres, vous acceptez l'utilisation de cookies susceptibles de réaliser des statistiques de visite. Cliquez ici pour plus d'informations