Bénéficiez des services de nos partenaires locaux soigneusement sélectionnés
pour vous accompagner dans votre parcours d'achat immobilier

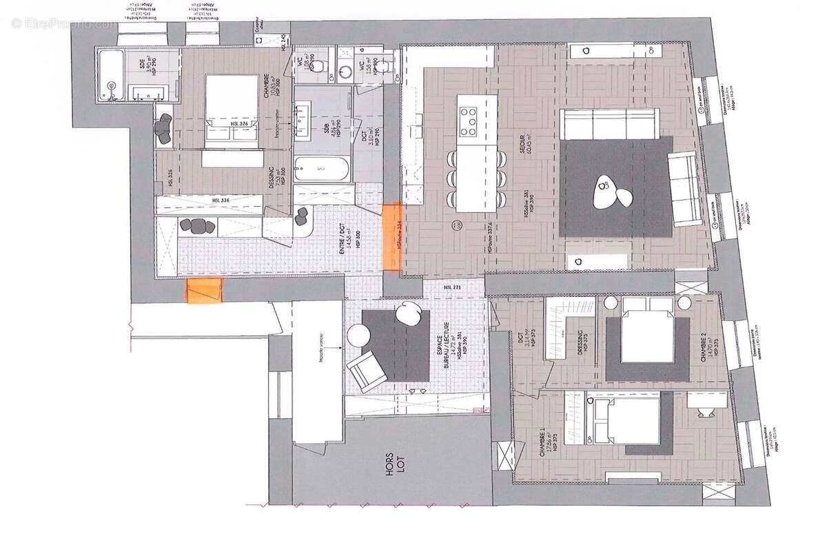
Lyon 2e - magnifique appartement bourgeois de 163m2 . entièrement rénové

— Lyon-2e 69002 —
1 025 000 €
163 m²
4 pièces
balcon/terrasseascenseur

Nos partenaires locaux
Les Clés d'Alexia Lyon 6e vous propose à la vente au cœur de la Presqu'île lyonnaise. entre la majestueuse place Bellecour et les quais apaisants de la Saône. cet appartement d'environ 160 m² incarnant l'essence même du raffinement. Niché au premier étage d'un élégant immeuble haussmannien avec ascenseur. il bénéficie d'une rénovation d'exception. achevée en avril. où chaque détail a été pensé pour conjuguer harmonieusement le charme de l'ancien et la modernité des prestations haut de gamme.

Dès l'entrée. la lumière naturelle baigne une vaste pièce de vie orientée à l'est. où une cuisine contemporaine entièrement équipée s'intègre avec subtilité à un salon convivial. Les volumes généreux sont magnifiés par un parquet d'époque restauré avec soin et par des plafonds à la française qui confèrent au lieu une allure noble et intemporelle.

L'espace nuit se compose de trois chambres spacieuses. dont une somptueuse suite parentale dotée d'une salle d'eau privative. de toilettes et d'un dressing indépendant. et une disposant de son propre balcon. De nombreux rangements sur mesure viennent parfaire cet agencement pensé pour conjuguer esthétisme et fonctionnalité. Une pièce supplémentaire. idéalement conçue pour accueillir un bureau. une salle à manger. ou une bibliothèque. offre un espace adaptable aux besoins les plus exigeants.

Une salle de bains commune. équipée à la fois d'une baignoire et d'une douche. ainsi qu'un second toilette. apportent confort et praticité au quotidien.

Ce bien d'exception. situé dans une copropriété sécurisée et parfaitement entretenue. bénéficie d'un emplacement privilégié à proximité immédiate des commerces. des transports et de l'effervescence culturelle du centre de Lyon. Une adresse rare. destinée à ceux qui recherchent un art de vivre sans compromis.

L'appartement est entièrement climatisé.


Pour organiser une visite ou obtenir plus d'informations. contactez Sarah Martinez au [Coordonnées masquées].
Voir plus

Référence: 86127866
DPE
A
B
C
D
E
F
G
GES
A
B
C
D
E
F
G

Prêt immobilier

Vous souhaitez connaître votre capacité d’emprunt et trouver le meilleur crédit immobilier ?
Réaliser une simulation gratuite

Appartement à LYON-2E
Appartement à LYON-2E
Appartement à LYON-2E
Appartement à LYON-2E
Appartement à LYON-2E
Appartement à LYON-2E
Appartement à LYON-2E
Appartement à LYON-2E
Appartement à LYON-2E
Appartement à LYON-2E
Appartement à LYON-2E
Appartement à LYON-2E
Appartement à LYON-2E
Appartement à LYON-2E
Appartement à LYON-2E
Appartement à LYON-2E
Appartement à LYON-2E
Ce site est protégé par reCAPTCHA la Politique de confidentialité et les Conditions d’utilisation de Google s’appliquent.
Obtenir un prêt immobilier au meilleur taux ?

En poursuivant votre navigation sans modifier vos paramètres, vous acceptez l'utilisation de cookies susceptibles de réaliser des statistiques de visite. Cliquez ici pour plus d'informations