Bénéficiez des services de nos partenaires locaux soigneusement sélectionnés
pour vous accompagner dans votre parcours d'achat immobilier

Menton appartement historique avec vue exceptionnelle

— Menton 06500 —
685 000 €
94 m²
4 pièces

Nos partenaires locaux
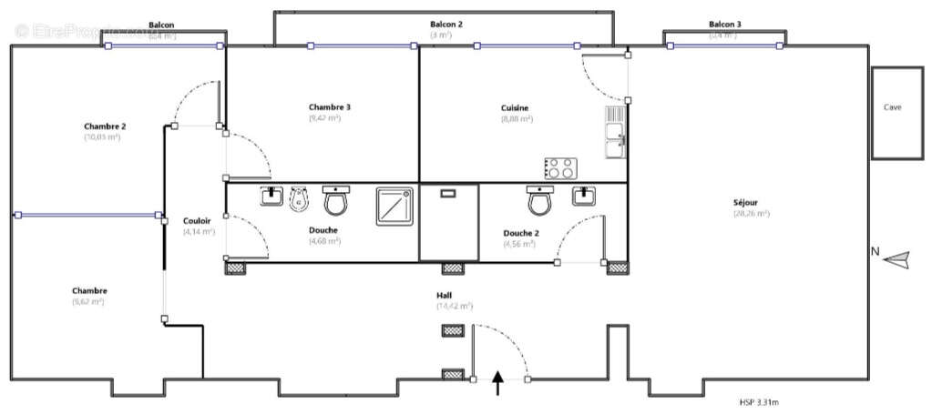
Appartement d'exception au cinquième étage d'un ancien palace Mentonnais. Situé au coeur du centre-ville et à proximité immédiate des jardins Biovès. Sa localisation permet de profiter pleinement de la vie urbaine ainsi que de la mer, des commerces, restaurants, transports et plages. Avec une superficie d'environ 100m², composé comme suit : Une entrée, un vaste séjour, une cuisine indépendante, deux salles d'eau avec toilettes, une chambre, une chambre bureau et de nombreux placards ainsi que deux balcons. Il offre une très belle hauteur sous plafond de 3m30 mettant en valeur son caractère unique et spacieux et un plancher d'origine soigneusement préservé. De par sa position élevée il permet de profiter d'une vue splendide et d'une luminosité incroyable. Cet appartement possède un fort potentiel, alliant des éléments historiques à une vue imprenable. Visites et renseignements au [Coordonnées masquées] Honoraires agence charge vendeur. Appartement soumis au régime de la copropriété (52 lots). Montant charges annuelles : 5130 euros Date réalisation des diagnostics : 16/04/2025 Consommation énergie primaire : D (181 kWh/m²/an) Consommation énergie finale : 172 kWh/m²/an Montant estimé des dépenses annuelles d'énergie pour un usage standard : entre 1400 et 1940 euros par an Prix moyens des énergies indexées sur l'année 2023 (abonnement compris)   Les informations sur les risques auxquels ce bien est exposé sont disponibles sur le site Géorisques : www.georisques.gouv.fr Copropriété de 120 lots - dont 52 lots habitation. (Pas de procédure en cours). Charges annuelles : 213 euros.
Voir plus

Référence: 88
Bien en copropriété. Nombre de lots : 120. Charges de copropriété : 213 €.
Honoraires à la charge du vendeur.
DPE
A
B
C
D
E
F
G
GES
A
B
C
D
E
F
G

Prêt immobilier

Vous souhaitez connaître votre capacité d’emprunt et trouver le meilleur crédit immobilier ?
Réaliser une simulation gratuite

Appartement à MENTON
Appartement à MENTON
Appartement à MENTON
Appartement à MENTON
Appartement à MENTON
Appartement à MENTON
Appartement à MENTON
Appartement à MENTON
Appartement à MENTON
Appartement à MENTON
Appartement à MENTON
Ce site est protégé par reCAPTCHA la Politique de confidentialité et les Conditions d’utilisation de Google s’appliquent.
Obtenir un prêt immobilier au meilleur taux ?

En poursuivant votre navigation sans modifier vos paramètres, vous acceptez l'utilisation de cookies susceptibles de réaliser des statistiques de visite. Cliquez ici pour plus d'informations