Bénéficiez des services de nos partenaires locaux soigneusement sélectionnés
pour vous accompagner dans votre parcours d'achat immobilier

Appartement 46m² à argenteuil

— Argenteuil 95100 —
195 000 €
46 m²
2 pièces
parkingbalcon/terrasse

Nos partenaires locaux
Iad France - Florian Vandeputte-Houbre ([Coordonnées masquées]) vous propose : Idéal primo accédant ou investisseurs - appartement 2 pièces avec balcon situé au 1er étage d'un immeuble de 2 étages.
Situé rue de Barentin à Argenteuil, petite copropriété intimiste et de standing parfaitement desservie par les transports en commun pour rejoindre la gare du Val d'Argenteuil ainsi que le tramway au pont de Bezons. Vous pourrez profiter également des nombreux commerces de proximité du quartier.
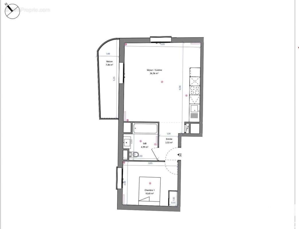
Agencement optimal pour cet appartement de 2 pièces situé au 1er étage d'un immeuble de 2 étages et offrant une entrée, un séjour avec cuisine ouverte de plus de 26 m² environ et donnant accès sur le balcon, et une salle de bains avec WC.
Cave et emplacement de parking disponible en sus.
Résidence réalisée dans le cadre du label Bâtiment Basse Consommation selon la norme RE 2020.
N'hésitez plus et contactez-moi pour obtenir plus de renseignements.

Honoraires d'agence à la charge du vendeur. Bien non soumis au DPE. Les informations sur les risques auxquels ce bien est exposé sont disponibles sur le site Géorisques : www.georisques.gouv.fr. La présente annonce immobilière a été rédigée sous la responsabilité éditoriale de M. Florian Vandeputte-Houbre EI (ID 86088), mandataire indépendant en immobilier (sans détention de fonds), agent commercial de la SAS I@D France immatriculé au RSAC de Pontoise sous le numéro 819907007, titulaire de la carte de démarchage immobilier pour le compte de la société I@D France SAS.
Retrouvez tous nos biens sur notre site internet. www.iadfrance.fr.
Informations LOI ALUR :
Honoraires charge vendeur. (gedeon_6727_31652439)
Voir plus

Référence: 1736460-3
Honoraires à la charge du vendeur.

Prêt immobilier

Vous souhaitez connaître votre capacité d’emprunt et trouver le meilleur crédit immobilier ?
Réaliser une simulation gratuite

Photo 1 - Appartement à ARGENTEUIL
Photo 1
Photo 2 - Appartement à ARGENTEUIL
Photo 2
Photo 3 - Appartement à ARGENTEUIL
Photo 3
Photo 4 - Appartement à ARGENTEUIL
Photo 4
Photo 5 - Appartement à ARGENTEUIL
Photo 5
Ce site est protégé par reCAPTCHA la Politique de confidentialité et les Conditions d’utilisation de Google s’appliquent.
Obtenir un prêt immobilier au meilleur taux ?

En poursuivant votre navigation sans modifier vos paramètres, vous acceptez l'utilisation de cookies susceptibles de réaliser des statistiques de visite. Cliquez ici pour plus d'informations