maison de charme de 235 m² – proche lac de madine

— Euvezin 54470 —
139 000 €
235 m² / 159 m²
10 pièces

À quelques pas du Lac de Madine, petit village lové dans les paysages du Parc naturel régional de Lorraine, là où la nature est partout, une bâtisse de pierre attend sa prochaine histoire.

Cette maison ancienne, aux allures de maison de famille, développe 235 m² habitables et déploie une architecture généreuse. Un lieu chargé d'âme, de matières nobles, de volumes francs et de souvenirs en devenir.

Derrière sa façade discrète, l'intérieur surprend par sa respiration. Pierres apparentes, poutres séculaires, cheminées d'époque, parquets massifs, hauteur sous plafond, lumière traversante : tout ici évoque une maison habitée par le temps, réchauffée par les usages, prête à accueillir un projet de vie, ou une vision nouvelle.

Le rez-de-chaussée offre déjà l'essentiel : une entrée principale qui s'ouvre sur un premier salon convivial, deux chambres aux belles proportions dont une avec salle d'eau privative, une cuisine fonctionnelle et un second accès indépendant, parfait pour scinder l'espace si besoin.

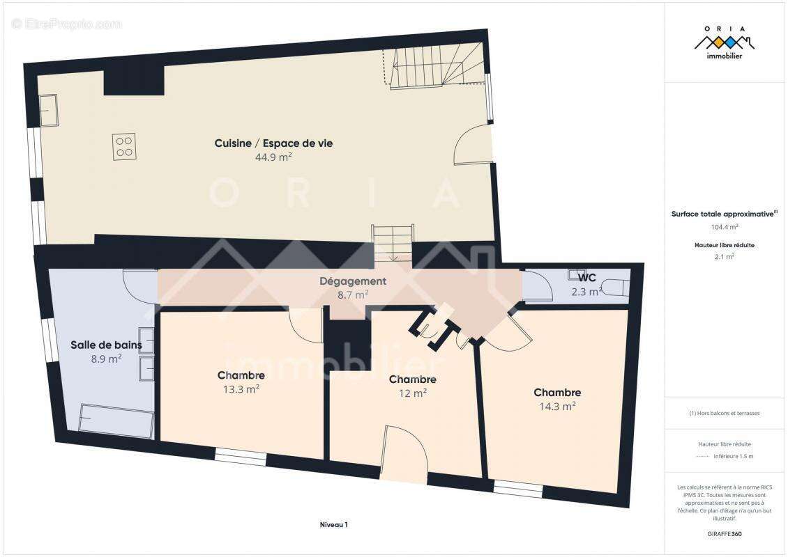
À l'étage, le lieu prend de l'élan. Un vaste séjour cathédrale d'environ 46 m², baigné de lumière, abrite une cuisine ouverte avec plan de travail en quartz et électroménager de qualité. Trois chambres se distribuent avec fluidité, ainsi qu'une salle de bains, des toilettes séparées, et une étonnante mezzanine suspendue surplombant le salon, propice à un coin lecture, un atelier ou un bureau. Un grenier aménagé, isolé, complète l'ensemble en offrant une pièce supplémentaire, modulable selon les besoins.

Au sous-sol, deux caves voûtées en pierre, d'environ 75 m², prolongent la magie du lieu : espace de stockage, de dégustation, de création.

Il n'y a pas de jardin, ni de garage. Et pourtant, le sentiment d'espace est constant. La nature est à la porte. Le stationnement est facile dans le village, sans contrainte. L'ensemble ne nécessite aucun travaux : toiture en très bon état, menuiseries bois double vitrage, électricité aux normes, chauffage à inertie, velux électriques à capteur de pluie. Une maison prête à vivre, ou à transmettre.

Euvezin est un village discret, mais idéalement situé : à 5 minutes de Thiaucourt et de toutes ses commodités (commerces, écoles, services), à 20 minutes de Pont-à-Mousson et Pagny-sur-Moselle. Le village bénéficie d'un ramassage scolaire, d'un environnement préservé et surtout d'une proximité rare avec l'un des joyaux naturels du territoire : le Lac de Madine.

En moins de dix minutes, vous rejoignez les plages du lac, ses chemins de randonnée, son golf, ses activités nautiques, ses écuries, ses restaurants d'été. Un cadre propice au ressourcement, à la location saisonnière, à la résidence secondaire… ou à la vie, tout simplement.

La maison peut devenir une résidence principale chaleureuse, un lieu de retrouvailles familiales, ou un projet locatif abouti (gîte, maison d'hôtes, location courte durée). Son agencement permet d'imaginer une division douce avec sa double entrée. Son cachet en fait un décor parfait, naturel et inspiré.

Un lieu pour ralentir. Pour recevoir. Pour créer. Pour vivre.

Les informations sur les risques auxquels ce bien est exposé sont disponibles sur le site Géorisque : https://www.georisque.gouv.fr

La présente annonce immobilière est présentée par Jimmy MARQUET EI - Numéro RSAC : NANCY 442051884, agent commercial de la SARL ORIA Immobilier.
Voir plus

Référence: 6136289
Honoraires à la charge du vendeur.
DPE
A
B
C
D
E
F
G
GES
A
B
C
D
E
F
G

Prêt immobilier

Vous souhaitez connaître votre capacité d’emprunt et trouver le meilleur crédit immobilier ?
Réaliser une simulation gratuite

Maison à EUVEZIN
Maison à EUVEZIN
Maison à EUVEZIN
Maison à EUVEZIN
Maison à EUVEZIN
Maison à EUVEZIN
Maison à EUVEZIN
Maison à EUVEZIN
Maison à EUVEZIN
Maison à EUVEZIN
Maison à EUVEZIN
Maison à EUVEZIN
Maison à EUVEZIN
Maison à EUVEZIN
Maison à EUVEZIN
Maison à EUVEZIN
Maison à EUVEZIN
Maison à EUVEZIN
Maison à EUVEZIN
Maison à EUVEZIN
Ce site est protégé par reCAPTCHA la Politique de confidentialité et les Conditions d’utilisation de Google s’appliquent.
Obtenir un prêt immobilier au meilleur taux ?

En poursuivant votre navigation sans modifier vos paramètres, vous acceptez l'utilisation de cookies susceptibles de réaliser des statistiques de visite. Cliquez ici pour plus d'informations