Bénéficiez des services de nos partenaires locaux soigneusement sélectionnés
pour vous accompagner dans votre parcours d'achat immobilier

Plateau a ameneger

— Melun 77000 —
354 000 €
140 m²
9 pièces
parking

Nos partenaires locaux
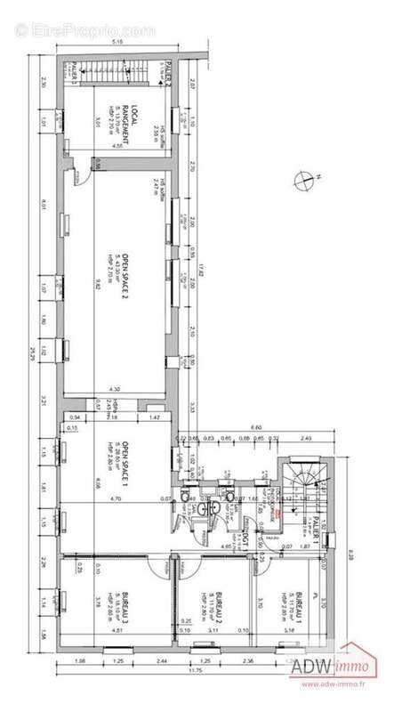
Beaucoup d'avantage pour ce plateau à aménager sur la ville de MELUN :
Tout d’abord, ce projet, qui occupe plus de 140 m2 au même niveau, est desservi par deux escaliers, ce qui permet de créer trois lots de grande surface.
Tout est prêt : l’accord de la mairie, l’approbation d’Enedis pour les compteurs Linky et le DPE projetées sont disponibles POUR VOUS !
LES POINTS FORTS du projet : appartements très lumineux grâce à leur disposition traversante, idéalement situés en face de la récente restructuration de la gare, à proximité de la pépinière d’entreprises et des écoles (infirmières, BTS et assas…).
contactez-moi pour une visite
PS Parking et cave en option. QUI DIT MIEUX??
Aurélie WEBER
[Coordonnées masquées]
Voir plus

Référence: 2646
DPE
A
B
C
D
E
F
G
GES
A
B
C
D
E
F
G

Prêt immobilier

Vous souhaitez connaître votre capacité d’emprunt et trouver le meilleur crédit immobilier ?
Réaliser une simulation gratuite

Appartement à MELUN
Appartement à MELUN
Appartement à MELUN
Appartement à MELUN
Appartement à MELUN
Ce site est protégé par reCAPTCHA la Politique de confidentialité et les Conditions d’utilisation de Google s’appliquent.
Obtenir un prêt immobilier au meilleur taux ?

En poursuivant votre navigation sans modifier vos paramètres, vous acceptez l'utilisation de cookies susceptibles de réaliser des statistiques de visite. Cliquez ici pour plus d'informations