Bénéficiez des services de nos partenaires locaux soigneusement sélectionnés
pour vous accompagner dans votre parcours d'achat immobilier

A vendre - maison a fort potentiel a deux pas de calvi

— Calenzana 20214 —
680 000 €
261 m² / 5 000 m²
9 pièces
parkingbalcon/terrassejardin

Nos partenaires locaux
Idéalement située à seulement quelques minutes du centre-ville de Calvi, sur un terrain d’environ 5 000 m2, cette charmante maison à rénover offre un fort potentiel d'aménagement. Avec une surface habitable de 260,69 m2, répartie sur trois niveaux, elle saura séduire les passionnés de rénovation à la recherche d’un cadre spacieux et modulable, une opportunité idéale pour donner vie à un projet immobilier sur mesure.
 
Disposition des pièces :
 
Rez-de-chaussée :

Hall d'entrée
Salle à manger
Cuisine
Séjour avec accès à différentes terrasses
Salle d’eau
Salle de bain
WC indépendant
Trois chambres spacieuses d’environ 29m2, 15m2 et 19m2

 
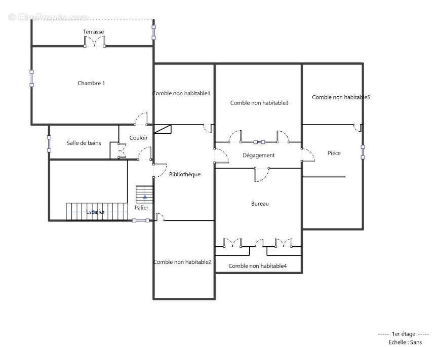
Premier étage :

Dégagement
Salle d’eau
Chambre
Bureau
Bibliothèque
Pièce annexe

 
Deuxième étage :

Une chambre supplémentaire

 
L’ensemble bénéficie d’un cadre verdoyant, implanté au coeur d’un environnement naturel et préservé, propice à la détente, à la culture d’essences locales ou à la création d’un cadre de vie harmonieux en pleine nature. 
 
Localisation privilégiée :

À moins de 10 minutes en voiture des plages et du centre de Calvi (supermarchés, commerces, services médicaux, restaurants, etc.)
À moins de 5 minutes de l’aéroport international de Calvi Sainte-Catherine
À environ 15 minutes de la Forêt de Bonifatu, traversée par la rivière Figarella, immense massif forestier pour les amoureux de nature et de randonnées
A environ 40min de la vallée du Fango, classée Réserve de biosphère UNESCO, rivière aux eaux limpides serpentant entre les roches rouges et la végétation méditerranéenne
Villages typiques et lieux emblématiques à découvrir : Calvi, Sant’Antonino, Lumio, L’Île-Rousse, Monte Cinto…

 
Un bien rare offrant un excellent potentiel de rénovation, que ce soit pour une résidence principale, secondaire ou un projet locatif.
 
Pour plus de renseignements, contactez-nous au [Coordonnées masquées]
Voir plus

Référence: 219
Honoraires à la charge du vendeur.
DPE
A
B
C
D
E
F
G
GES
A
B
C
D
E
F
G

Prêt immobilier

Vous souhaitez connaître votre capacité d’emprunt et trouver le meilleur crédit immobilier ?
Réaliser une simulation gratuite

Maison à CALENZANA
Maison à CALENZANA
Maison à CALENZANA
Maison à CALENZANA
Maison à CALENZANA
Maison à CALENZANA
Maison à CALENZANA
Maison à CALENZANA
Maison à CALENZANA
Maison à CALENZANA
Maison à CALENZANA
Maison à CALENZANA
Maison à CALENZANA
Maison à CALENZANA
Maison à CALENZANA
Maison à CALENZANA
Maison à CALENZANA
Maison à CALENZANA
Maison à CALENZANA
Maison à CALENZANA
Maison à CALENZANA
Maison à CALENZANA
Maison à CALENZANA
Maison à CALENZANA
Maison à CALENZANA
Maison à CALENZANA
Maison à CALENZANA
Maison à CALENZANA
Maison à CALENZANA
Maison à CALENZANA
Maison à CALENZANA
Maison à CALENZANA
Maison à CALENZANA
Maison à CALENZANA
Maison à CALENZANA
Maison à CALENZANA
Maison à CALENZANA
Maison à CALENZANA
Maison à CALENZANA
Maison à CALENZANA
Maison à CALENZANA
Maison à CALENZANA
Maison à CALENZANA
Maison à CALENZANA
Maison à CALENZANA
Maison à CALENZANA
Maison à CALENZANA
Maison à CALENZANA
Maison à CALENZANA
Maison à CALENZANA
Ce site est protégé par reCAPTCHA la Politique de confidentialité et les Conditions d’utilisation de Google s’appliquent.
Obtenir un prêt immobilier au meilleur taux ?

En poursuivant votre navigation sans modifier vos paramètres, vous acceptez l'utilisation de cookies susceptibles de réaliser des statistiques de visite. Cliquez ici pour plus d'informations