Bénéficiez des services de nos partenaires locaux soigneusement sélectionnés
pour vous accompagner dans votre parcours d'achat immobilier

Neuilly - pont de neuilly - appartement familial

— Neuilly-Sur-Seine 92200 —
1 195 000 €
137 m²
4 pièces
ascenseur

Nos partenaires locaux
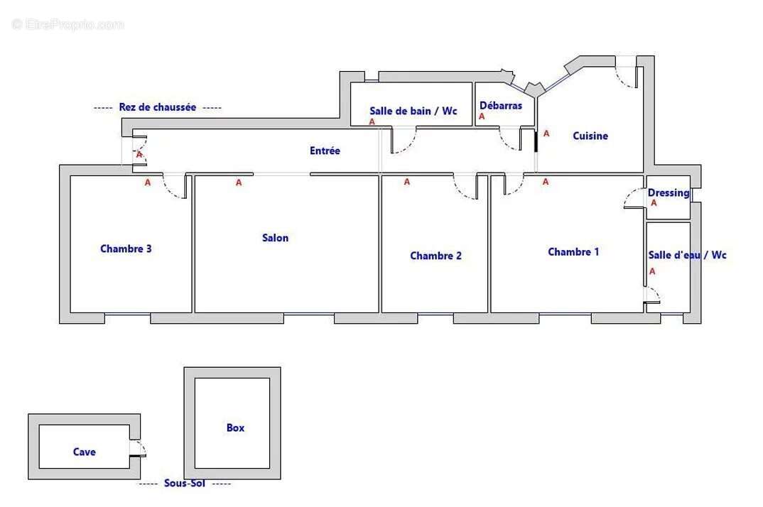
L'agence MAXIME DESPÈRES vous propose, dans le quartier Pont de Neuilly / Longchamp, au sein d’un immeuble ancien de standing datant de 1930 avec gardien, un appartement familial de 137.39m² en bon état général. Ce bien de charme avec vue dégagée sur La Défense se compose de : une galerie d’entrée desservant l’ensemble de l’appartement, un séjour, trois chambres avec rangements, dont une suite parentale avec dressing, salle d’eau et WC, une salle de bains indépendante avec WC, une cuisine dinatoire et une buanderie.
Idéalement situé à proximité des commerces et des transports.
Une cave complète ce bien.
En supplément : un box et une chambre de service sont disponibles.
Honoraires à la charge de l'acquéreur de 1% (prix hors honoraires: 1 183 050€). Pas de procédure en cours. Nombre total de lots : 490. Lots d’habitation : 115. Charges annuelles:8 244€/an. Les informations sur les risques auxquels ce bien est exposé sont disponibles sur le site Géorisques
Voir plus

Référence: 86130199
Barème des honoraires
DPE
A
B
C
D
E
F
G
GES
A
B
C
D
E
F
G

Prêt immobilier

Vous souhaitez connaître votre capacité d’emprunt et trouver le meilleur crédit immobilier ?
Réaliser une simulation gratuite

Appartement à NEUILLY-SUR-SEINE
Appartement à NEUILLY-SUR-SEINE
Appartement à NEUILLY-SUR-SEINE
Appartement à NEUILLY-SUR-SEINE
Appartement à NEUILLY-SUR-SEINE
Appartement à NEUILLY-SUR-SEINE
Appartement à NEUILLY-SUR-SEINE
Appartement à NEUILLY-SUR-SEINE
Appartement à NEUILLY-SUR-SEINE
Appartement à NEUILLY-SUR-SEINE
Appartement à NEUILLY-SUR-SEINE
Ce site est protégé par reCAPTCHA la Politique de confidentialité et les Conditions d’utilisation de Google s’appliquent.
Obtenir un prêt immobilier au meilleur taux ?

En poursuivant votre navigation sans modifier vos paramètres, vous acceptez l'utilisation de cookies susceptibles de réaliser des statistiques de visite. Cliquez ici pour plus d'informations