Bénéficiez des services de nos partenaires locaux soigneusement sélectionnés
pour vous accompagner dans votre parcours d'achat immobilier

Nice carre d'or - dernier etage - terrasse - vue degagee

— Nice 06000 —
620 000 €
50 m²
3 pièces
parkingbalcon/terrasseascenseur

Nos partenaires locaux
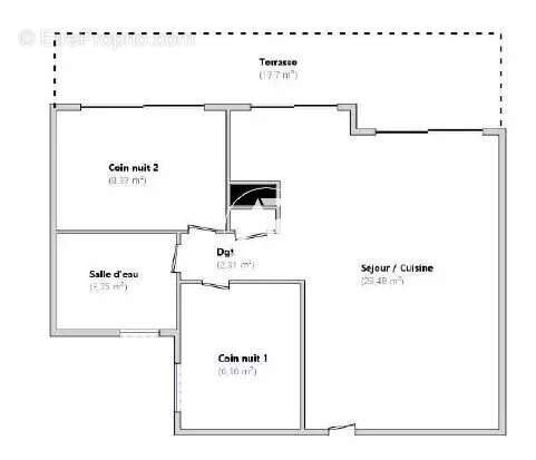
EXCLUSIVITE: DERNIER ETAGE // TERRASSE 18M² A CIEL OUVERT

NICE // CARRE D'OR / PROMENADE DES ANGLAIS
DERNIER ETAGE VUE DEGAGEE - 3 PIECES + TERRASSE de 18m² A CIEL OUVERT

A 100 mètres de la mer, accès direct sur la Promenade des Anglais au niveau de l'Hôtel Le Royal. Commerces, restaurants et transports à proximité immédiate, bus N°12 pour Aéroport Nice Côte d'Azur.

Appartement 3 pièces, très lumineux, exposé Sud-Ouest, en DERNIER ETAGE ouvrant sur une vaste terrasse ensoleillée de 18m² avec une vue dégagée ville et collines avec vue dégagée. Le bien est en très bon état.

Séjour sud-ouest de 30m² avec cuisine ouverte entièrement équipée de marque italienne, chambre donnant sur la terrasse, petite chambre d’appoint/ bureau, une salle de douche avec Wc et fenêtre. Dégagement avec placard.
Une cave en sous- sol.
Fenêtres coulissantes en aluminium avec double vitrage. Stores et volets roulants électriques.
Parties communes en parfait état. Gardien.

Résidence de standing, ascenseur, vidéo-surveillance. Chauffage et eau chaude individuels. Faibles charges.

Location saisonnière autorisée, idéal investissement locatif.

Les honoraires sont à la charge vendeur.
Les informations sur les risques auxquels ce bien est exposé sont disponibles sur le site georisques.gouv.fr.
Voir plus

Référence: 85155150
Barème des honoraires
DPE
A
B
C
D
E
F
G
GES
A
B
C
D
E
F
G

Prêt immobilier

Vous souhaitez connaître votre capacité d’emprunt et trouver le meilleur crédit immobilier ?
Réaliser une simulation gratuite

Appartement à NICE
Appartement à NICE
Appartement à NICE
Appartement à NICE
Appartement à NICE
Appartement à NICE
Appartement à NICE
Appartement à NICE
Appartement à NICE
Appartement à NICE
Appartement à NICE
Appartement à NICE
Appartement à NICE
Appartement à NICE
Appartement à NICE
Ce site est protégé par reCAPTCHA la Politique de confidentialité et les Conditions d’utilisation de Google s’appliquent.
Obtenir un prêt immobilier au meilleur taux ?

En poursuivant votre navigation sans modifier vos paramètres, vous acceptez l'utilisation de cookies susceptibles de réaliser des statistiques de visite. Cliquez ici pour plus d'informations