Bénéficiez des services de nos partenaires locaux soigneusement sélectionnés
pour vous accompagner dans votre parcours d'achat immobilier

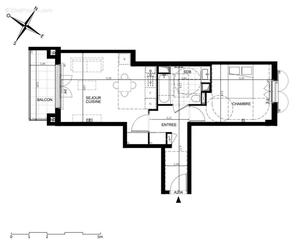
Appartement orsay 2 pièce(s) 46.80 m2

— Orsay 91400 —
267 000 €
47 m²
2 pièces
parkingbalcon/terrasseascenseur

Nos partenaires locaux
L'Équinoxe ! Programme Neuf à Orsay (91400) A deux pas du RER B ! Quartier du Guichet Située dans un environnement résidentiel recherché, cette nouvelle résidence vous invite à découvrir un art de vivre alliant modernité, confort et proximité. A seulement quelques minutes à pied de la gare RER B Le Guichet, cette adresse de choix bénéficie également de la présence immédiate de commerces, écoles et services. Composée de seulement 39 appartements répartis sur trois étages (1er, 2e et 3e), L'Équinoxe est une résidence à taille humaine. Chaque logement est soigneusement agencé pour offrir des volumes généreux, une belle luminosité et des espaces extérieurs privatifs (balcons, terrasses ou jardins selon les lots). Les prestations sont de haute qualité : matériaux durables, finitions soignées, performance énergétique conforme à la réglementation RE2020, garantissant un confort optimal en toute saison. Et pour un quotidien plus pratique et sécurisé, chaque appartement dispose d'une place de stationnement en sous-sol sécurisé. En plus de ses atouts de confort, ce programme bénéficie de frais de notaire réduits à 2%, ce qui représente une économie appréciable par rapport à un achat dans l'ancien. La livraison des logements est prévue au 4? trimestre 2027, vous offrant le temps nécessaire pour anticiper votre projet de vie ou d'investissement dans des conditions idéales. Contactez nous dès aujourd'hui pour découvrir les plans, les disponibilités et réserver votre futur appartement neuf dans la résidence L'Équinoxe à Orsay. Copropriété de 78 lots - dont 39 lots habitation.(Pas de procédure en cours).
Voir plus

Référence: 814
Bien en copropriété. Nombre de lots : 78.
Honoraires à la charge du vendeur.
Barème des honoraires

Prêt immobilier

Vous souhaitez connaître votre capacité d’emprunt et trouver le meilleur crédit immobilier ?
Réaliser une simulation gratuite

Appartement à ORSAY
Appartement à ORSAY
Appartement à ORSAY
Appartement à ORSAY
Appartement à ORSAY
Appartement à ORSAY
Appartement à ORSAY
Ce site est protégé par reCAPTCHA la Politique de confidentialité et les Conditions d’utilisation de Google s’appliquent.
Obtenir un prêt immobilier au meilleur taux ?

En poursuivant votre navigation sans modifier vos paramètres, vous acceptez l'utilisation de cookies susceptibles de réaliser des statistiques de visite. Cliquez ici pour plus d'informations