Bénéficiez des services de nos partenaires locaux soigneusement sélectionnés
pour vous accompagner dans votre parcours d'achat immobilier

Maison à vendre - 136 m² - brive la gaillarde (19)

— Brive-La-Gaillarde 19100 —
172 000 €
137 m² / 758 m²
5 pièces
parkingbalcon/terrassejardin

Nos partenaires locaux
À vendre – Maison spacieuse à Brive, idéale famille ou investissement locatif

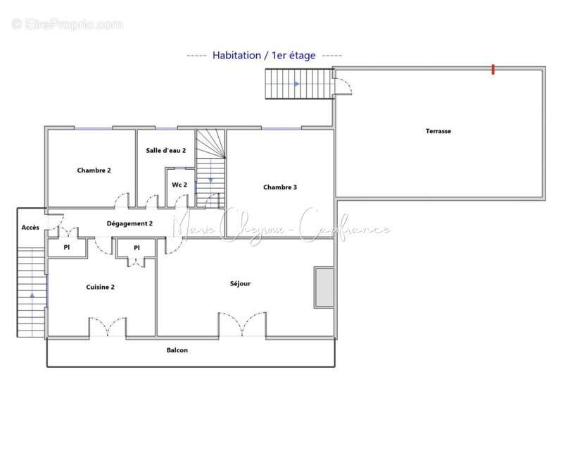
Située dans une rue très calme et résidentielle sous le quartier de Bassaler, cette maison des années 60 offre un beau potentiel d'aménagement sur une parcelle de plus de 750 m².

Elle se compose de deux niveaux indépendants, et par la présence d'un escalier extérieur, permet une double destination :
> maison familiale, pour accueillir confortablement une jolie tribu,
> immeuble de rapport, avec la possibilité de créer deux logements distincts (T2 au rez-de-chaussée et T3 à l'étage).

Chaque niveau dispose déjà de cuisine, salle d'eau, WC et pièces de vie, pour une mise en location rapide ou une vie en autonomie à chaque étage. 2 garages et 2 grandes terrasses viennent compléter cette organisation.

Chauffage et eau chaude sont assurés par une chaudière individuelle au fioul.

Situation idéale : entre le centre-ville et la zone Ouest de Brive, à seulement quelques minutes des accès A20 et A89. Environnement résidentiel sans aucune nuisance, stationnements aisés, proche des commodités.

À noter : la maison nécessite un raffraîchissement général et des travaux de rénovation énergétique (classée F en DPE), pour lesquels un audit énergétique réglementaire avec chiffrage précis sera fourni.

Un bien à fort potentiel, à adapter selon votre projet de vie ou d'investissement.

Plus d'informations et visite sur demande.
Conformément à l'article L.561-5 du Code monétaire et financier, une pièce d'identité ainsi qu'une attestation de faisabilité ou de financement seront demandées avant toute visite. Les honoraires sont à la charge du vendeur.
Logement à consommation énergétique excessive : classe F
Les informations sur les risques auxquels ce bien est exposé sont disponibles sur le site Géorisques : www. georisques. gouv. fr.

Réseau Immobilier CAPIFRANCE - Votre agent commercial (RSAC N°983 160 110 - Greffe de BRIVE LA GAILLARDE) Marie CHEYROUX Entrepreneur Individuel [Coordonnées masquées] - Réf.907695
Voir plus

Référence: 340939272513
Honoraires à la charge du vendeur.
DPE
A
B
C
D
E
F
G
GES
A
B
C
D
E
F
G

Prêt immobilier

Vous souhaitez connaître votre capacité d’emprunt et trouver le meilleur crédit immobilier ?
Réaliser une simulation gratuite

Maison à BRIVE-LA-GAILLARDE
Maison à BRIVE-LA-GAILLARDE
Maison à BRIVE-LA-GAILLARDE
Maison à BRIVE-LA-GAILLARDE
Maison à BRIVE-LA-GAILLARDE
Maison à BRIVE-LA-GAILLARDE
Maison à BRIVE-LA-GAILLARDE
Maison à BRIVE-LA-GAILLARDE
Maison à BRIVE-LA-GAILLARDE
Maison à BRIVE-LA-GAILLARDE
Maison à BRIVE-LA-GAILLARDE
Maison à BRIVE-LA-GAILLARDE
Maison à BRIVE-LA-GAILLARDE
Maison à BRIVE-LA-GAILLARDE
Maison à BRIVE-LA-GAILLARDE
Maison à BRIVE-LA-GAILLARDE
Maison à BRIVE-LA-GAILLARDE
Maison à BRIVE-LA-GAILLARDE
Maison à BRIVE-LA-GAILLARDE
Maison à BRIVE-LA-GAILLARDE
Maison à BRIVE-LA-GAILLARDE
Maison à BRIVE-LA-GAILLARDE
Maison à BRIVE-LA-GAILLARDE
Maison à BRIVE-LA-GAILLARDE
Maison à BRIVE-LA-GAILLARDE
Maison à BRIVE-LA-GAILLARDE
Maison à BRIVE-LA-GAILLARDE
Maison à BRIVE-LA-GAILLARDE
Maison à BRIVE-LA-GAILLARDE
Maison à BRIVE-LA-GAILLARDE
Maison à BRIVE-LA-GAILLARDE
Maison à BRIVE-LA-GAILLARDE
Maison à BRIVE-LA-GAILLARDE
Maison à BRIVE-LA-GAILLARDE
Maison à BRIVE-LA-GAILLARDE
Ce site est protégé par reCAPTCHA la Politique de confidentialité et les Conditions d’utilisation de Google s’appliquent.
Obtenir un prêt immobilier au meilleur taux ?

En poursuivant votre navigation sans modifier vos paramètres, vous acceptez l'utilisation de cookies susceptibles de réaliser des statistiques de visite. Cliquez ici pour plus d'informations