Maison à vendre 6 pièces combrit (29)

— Combrit 29120 —
310 000 €
124 m² / 153 m²
6 pièces
parkingbalcon/terrassejardin

Exclusivité. Maison de charme en pierre en plein centre bourg de Combrit. Commerces, écoles, médecins, pharmacie, bibliothèque, mairie et poste sont accessibles à pied. Les plages, le port de Sainte-Marine et l'Ile Tudy sont à environ 3 kilomètres.
La maison a été rénovée au cours des 9 dernières années. Belle rénovation soignée. La maison comprend un jardin d'environ 60 m², avec abri de jardin et grande terrasse pour déjeuner dehors, et vous pourrez y garer votre voiture.
Très bon DPE: classe C.
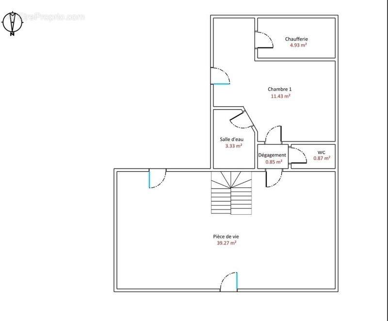
La maison s'organise ainsi:
Au rez-de-chaussée: cuisine ouverte sur le séjour, formant une pièce de vie de 40 m², un WC indépendant, une chambre avec sa salle d'eau privative, et la chaufferie (pompe à chaleur installée en 2016).
Etage 1: deux grandes chambres, dont l'une avec un lavabo. Un WC indépendant et une grande salle de bains
Etage 2: deux grandes chambres, un WC avec lavabo.
Double vitrage.
Pompe à chaleur. Chauffage par le sol dans la cuisine et le séjour.
Assainissement collectif.
Taxe foncière 2025: 819 €
Jardin avec terrasse exposée sud.
En exclusivité chez Capifrance.

Les honoraires d'agence sont à la charge de l'acquéreur, soit 4,73% TTC du prix hors honoraires.
Les informations sur les risques auxquels ce bien est exposé sont disponibles sur le site Géorisques : www. georisques. gouv. fr.

Réseau Immobilier CAPIFRANCE - Votre agent commercial (RSAC N°478 362 593 - Greffe de QUIMPER) Karine CORCUFF Entrepreneur Individuel [Coordonnées masquées] - Réf.885519
Voir plus

Référence: 340936821909
DPE
A
B
C
D
E
F
G
GES
A
B
C
D
E
F
G

Prêt immobilier

Vous souhaitez connaître votre capacité d’emprunt et trouver le meilleur crédit immobilier ?
Réaliser une simulation gratuite

Maison à COMBRIT
Maison à COMBRIT
Maison à COMBRIT
Maison à COMBRIT
Maison à COMBRIT
Maison à COMBRIT
Maison à COMBRIT
Maison à COMBRIT
Maison à COMBRIT
Maison à COMBRIT
Maison à COMBRIT
Maison à COMBRIT
Maison à COMBRIT
Maison à COMBRIT
Maison à COMBRIT
Maison à COMBRIT
Maison à COMBRIT
Maison à COMBRIT
Maison à COMBRIT
Maison à COMBRIT
Maison à COMBRIT
Maison à COMBRIT
Maison à COMBRIT
Maison à COMBRIT
Maison à COMBRIT
Maison à COMBRIT
Maison à COMBRIT
Ce site est protégé par reCAPTCHA la Politique de confidentialité et les Conditions d’utilisation de Google s’appliquent.
Obtenir un prêt immobilier au meilleur taux ?

En poursuivant votre navigation sans modifier vos paramètres, vous acceptez l'utilisation de cookies susceptibles de réaliser des statistiques de visite. Cliquez ici pour plus d'informations