Bénéficiez des services de nos partenaires locaux soigneusement sélectionnés
pour vous accompagner dans votre parcours d'achat immobilier

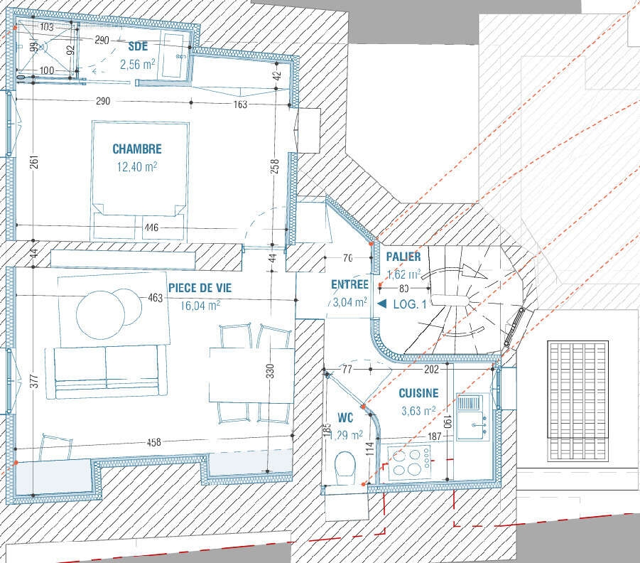
Appartement rénové avec goût en hyper-centre rue saint-aubin

— Angers 49100 —
179 000 €
39 m²
2 pièces

Nos partenaires locaux
Emplacement exceptionnel ! En plein cœur de l'hyper-centre, rue Saint-Aubin, profitez d’un cadre de vie privilégié à deux pas des commerces, des restaurants et des transports en commun.
Découvrez ce magnifique appartement de 39 m2, actuellement en rénovation totale, qui sera livré comme neuf tout en conservant le cachet de l'ancien. Il offre une belle pièce de vie lumineuse, une cuisine fonctionnelle, une chambre confortable avec salle d’eau et WC.
Situé dans une charmante petite copropriété entièrement rénovée, avec de faibles charges, cet appartement est idéal pour un premier achat, un pied-à-terre ou un investissement locatif de qualité.
Une opportunité rare à ne pas manquer !
Logement non soumis au DPE, aucun système de chauffage n’étant installé à ce jour.
Contacter Emeriau Mathilde de la Maison Angevine, Agent commercial immatriculé au RSAC de ANGERS sous le numéro 932 821 218
Voir plus

Référence: 866
Bien en copropriété. Nombre de lots : 5. Charges de copropriété : 600 €.
Honoraires d'agence de 6.48% à la charge de l'acquéreur
Barème des honoraires

Prêt immobilier

Vous souhaitez connaître votre capacité d’emprunt et trouver le meilleur crédit immobilier ?
Réaliser une simulation gratuite

Appartement à ANGERS
Appartement à ANGERS
Appartement à ANGERS
Appartement à ANGERS
Appartement à ANGERS
Appartement à ANGERS
Appartement à ANGERS
Appartement à ANGERS
Ce site est protégé par reCAPTCHA la Politique de confidentialité et les Conditions d’utilisation de Google s’appliquent.
Obtenir un prêt immobilier au meilleur taux ?

En poursuivant votre navigation sans modifier vos paramètres, vous acceptez l'utilisation de cookies susceptibles de réaliser des statistiques de visite. Cliquez ici pour plus d'informations