Maison 144m² à nouziers

— Nouziers 23350 —
192 600 €
144 m² / 16 669 m²
7 pièces
jardin

MARCON Immobilier – Creuse, en Limousin, Nouvelle-Aquitaine – Réf. 89051

Située au calme dans un hameau à 10 minutes d'Aigurande, cette belle maison en pierre agrandie en 2018 allie charme de l’ancien et confort moderne. Elle se distingue par son très bon état général et ses beaux volumes.

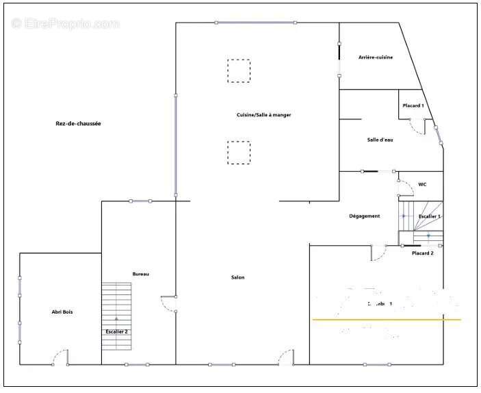
Au rez-de-chaussée, vous découvrirez une grande cuisine/salle à manger, avec un espace buanderie/arrière cuisine. Le séjour, chaleureux et lumineux, est agrémenté d’un poêle à bois. Une pièce attenante pouvant être utilisée comme bureau, permet d’accéder à l’étage. Une chambre de plain-pied, une salle d’eau et des WC indépendants complètent ce niveau.

À l’étage, une pièce palière pouvant servir de chambre dessert une grande chambre avec point d’eau et WC, ainsi qu’un bureau supplémentaire.

La propriété dispose également de belles dépendances : une grange indépendante d’environ 100 m² au sol avec mezzanine, un carport, une cave et une remise à bois. Le terrain attenant de 1 090 m² offre un cadre agréable et dégagé, et un jardin indépendant de 2 017 m², situé à moins de 50 mètres, dispose de deux petites remises.

À environ 350 mètres, deux autres parcelles sont à usage de bois (2 800 m²) et de pré (2 900 m²). Un dernier terrain de 16 600 m², situé à 150 mètres, est actuellement en friche et difficilement exploitable en l’état.

Un bien plein de caractère, idéal pour une vie au vert, en résidence principale ou secondaire.

Prix : 192 600 € (honoraires charge vendeur)

MARCON Immobilier GUERET [Coordonnées masquées]
Réseau de 3 agences en Creuse: Aubusson-Guéret-La Souterraine

"Les informations sur les risques auxquels ce bien est exposé sont disponibles sur le site Géorisques : georisques.gouv.fr" [Coordonnées masquées] [Coordonnées masquées]
Voir plus

Référence: 89051
DPE
A
B
C
D
E
F
G
GES
A
B
C
D
E
F
G

Prêt immobilier

Vous souhaitez connaître votre capacité d’emprunt et trouver le meilleur crédit immobilier ?
Réaliser une simulation gratuite

Maison à NOUZIERS
Maison à NOUZIERS
Maison à NOUZIERS
Maison à NOUZIERS
Maison à NOUZIERS
Maison à NOUZIERS
Maison à NOUZIERS
Maison à NOUZIERS
Maison à NOUZIERS
Maison à NOUZIERS
Maison à NOUZIERS
Maison à NOUZIERS
Maison à NOUZIERS
Maison à NOUZIERS
Maison à NOUZIERS
Maison à NOUZIERS
Maison à NOUZIERS
Maison à NOUZIERS
Maison à NOUZIERS
Maison à NOUZIERS
Maison à NOUZIERS
Maison à NOUZIERS
Maison à NOUZIERS
Maison à NOUZIERS
Maison à NOUZIERS
Maison à NOUZIERS
Maison à NOUZIERS
Maison à NOUZIERS
Maison à NOUZIERS
Maison à NOUZIERS
Maison à NOUZIERS
Maison à NOUZIERS
Maison à NOUZIERS
Maison à NOUZIERS
Maison à NOUZIERS
Maison à NOUZIERS
Maison à NOUZIERS
Maison à NOUZIERS
Maison à NOUZIERS
Maison à NOUZIERS
Maison à NOUZIERS
Maison à NOUZIERS
Maison à NOUZIERS
Maison à NOUZIERS
Maison à NOUZIERS
Ce site est protégé par reCAPTCHA la Politique de confidentialité et les Conditions d’utilisation de Google s’appliquent.
Obtenir un prêt immobilier au meilleur taux ?

En poursuivant votre navigation sans modifier vos paramètres, vous acceptez l'utilisation de cookies susceptibles de réaliser des statistiques de visite. Cliquez ici pour plus d'informations