Bénéficiez des services de nos partenaires locaux soigneusement sélectionnés
pour vous accompagner dans votre parcours d'achat immobilier

Nice madeleine. dans immeuble récent, 2 pièces rénové avec terrasse

— Nice 06000 —
195 000 €
40 m²
2 pièces
parkingbalcon/terrasse

Nos partenaires locaux
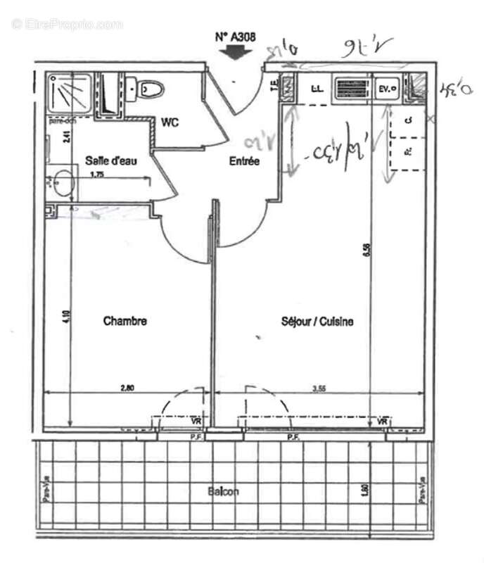
Situé en étage au sein d’une copropriété récente et très bien entretenue, ce bel appartement 2 pièces vous séduira par sa luminosité et son agencement optimisé !!
Il se compose d’un hall d’entrée, d’un vaste séjour avec cuisine américaine aménagée, ouvrant sur une grande terrasse de 15 m² exposée plein sud, idéale pour profiter des beaux jours.
Côté nuit, vous trouverez une chambre avec placard, une salle d’eau fonctionnelle et des WC indépendants.

Faibles charges.

Possibilité d’acquérir en supplément un emplacement de parking en sous-sol.

Une opportunité à ne pas manquer !

Infos & visites : Julia au [Coordonnées masquées]
Voir plus

Référence: 86136566
DPE
A
B
C
D
E
F
G
GES
A
B
C
D
E
F
G

Prêt immobilier

Vous souhaitez connaître votre capacité d’emprunt et trouver le meilleur crédit immobilier ?
Réaliser une simulation gratuite

Appartement à NICE
Appartement à NICE
Appartement à NICE
Appartement à NICE
Appartement à NICE
Appartement à NICE
Appartement à NICE
Appartement à NICE
Appartement à NICE
Appartement à NICE
Ce site est protégé par reCAPTCHA la Politique de confidentialité et les Conditions d’utilisation de Google s’appliquent.
Obtenir un prêt immobilier au meilleur taux ?

En poursuivant votre navigation sans modifier vos paramètres, vous acceptez l'utilisation de cookies susceptibles de réaliser des statistiques de visite. Cliquez ici pour plus d'informations