A vendre maison plouër-sur-rance 7 pièce(s) 209 m² 1969 m² de terrain grand sous-sol hors lotissement

— Plouer-Sur-Rance 22490 —
642 424 €
209 m² / 1 969 m²
7 pièces
parkingbalcon/terrassejardin

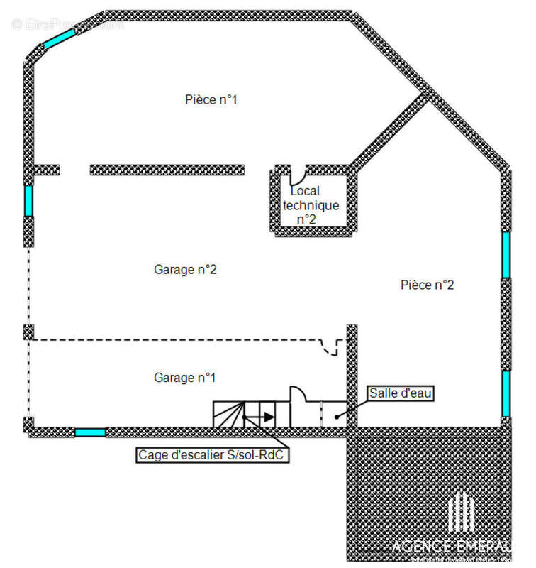
A Vendre - Spacieuse Maison Familiale à Plouër-sur-Rance, à deux pas de la Rance et du centre bourg. Située dans un environnement calme et verdoyant, hors lotissement, cette belle maison indépendante construite en 1994 vous séduira par ses volumes généreux et sa proximité immédiate avec la nature. Emplacement idéal : à seulement 800 mètres de la Rance, du centre bourg, des écoles et des activités de loisirs, tout est accessible à pied ! Caractéristiques principales : Surface habitable : 209 m² Terrain : 1 969 m² arboré et sans vis-à-vis Nombre de chambres : 6 Disposition : Rez-de-chaussée : Entrée accueillante Salon et séjour lumineux orientés au Sud-ouest. Grande cuisine aménagée et équipée donnant sur une vaste terrasse de plus de 50 m² exposée sud-ouest 1 chambre 1 salle de bain WC indépendant Premier étage : 4 chambres 1 salle de bain avec WC Dégagement Second étage Spacieuse 6e chambre aménagée en dortoir, idéale pour les enfants ou les invités Sous-sol complet Atelier Point d'eau Cave Deux grands garages offrant un beau potentiel de rangement ou de stationnement Un cadre de vie privilégié, au calme, sur une grande parcelle, parfait pour les amoureux de la nature ou les familles souhaitant un espace de vie fonctionnel à proximité des commodités. Contactez nous dès maintenant pour organiser une visite et découvrir tout le potentiel de cette belle maison ! Agence emeraude 48 rue levavasseur 35800 DINARD - [Coordonnées masquées] - [Coordonnées masquées]. (4.80 % honoraires TTC à la charge de l'acquéreur.)
Voir plus

Référence: 7585
Honoraires d'agence de 4.8% à la charge de l'acquéreur
Barème des honoraires
DPE
A
B
C
D
E
F
G
GES
A
B
C
D
E
F
G

Prêt immobilier

Vous souhaitez connaître votre capacité d’emprunt et trouver le meilleur crédit immobilier ?
Réaliser une simulation gratuite

Maison à PLOUER-SUR-RANCE
Maison à PLOUER-SUR-RANCE
Maison à PLOUER-SUR-RANCE
Maison à PLOUER-SUR-RANCE
Maison à PLOUER-SUR-RANCE
Maison à PLOUER-SUR-RANCE
Maison à PLOUER-SUR-RANCE
Maison à PLOUER-SUR-RANCE
Maison à PLOUER-SUR-RANCE
Maison à PLOUER-SUR-RANCE
Maison à PLOUER-SUR-RANCE
Maison à PLOUER-SUR-RANCE
Maison à PLOUER-SUR-RANCE
Maison à PLOUER-SUR-RANCE
Maison à PLOUER-SUR-RANCE
Ce site est protégé par reCAPTCHA la Politique de confidentialité et les Conditions d’utilisation de Google s’appliquent.
Obtenir un prêt immobilier au meilleur taux ?

En poursuivant votre navigation sans modifier vos paramètres, vous acceptez l'utilisation de cookies susceptibles de réaliser des statistiques de visite. Cliquez ici pour plus d'informations