Nice vieux-nice / cours saleya - appartement 2/3 pièces rénové, situation exceptionnelle !

— Nice 06300 —
275 000 €
47 m²
3 pièces

En EXCLUSIVITE: Opportunité à saisir !
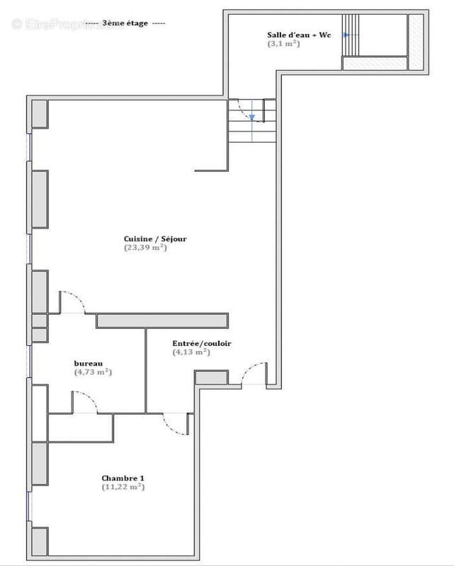
'SOUS COMPROMIS' Idéalement situé au coeur de la partie Premium du quartier historique et touristique du Vieux-Nice, cours Saleya, à 50 m de la mer, de la Promenade des Anglais et de la place Massena, bel appartement de type 2/3 Pièces d'une surface habitable Carrez de 47 m2, en parfait état, au calme et en étage élevé d'un immeuble niçois typique et parfaitement entretenu.
Lumineux, bien agencé et tout confort, le bien se compose d'une entrée ouvrant sur un grand séjour avec cuisine américaine équipée, une grande chambre avec rangements intégrés, une pièce bureau avec possibilité de couchage et une belle et moderne salle d'eau avec toilettes.
Larges fenêtres en double vitrage, climatisation, matériaux de qualité, décoration raffinée,...
IDEAL INVESTISSEMENT LOCATIF : LOCATIONS SAISONNIERES acceptées par la copropriété & Trés FAIBLES CHARGES !
Bien soumis au statut de la copropriété - Nombre de lots: 34 - Charges courantes annuelles : 1.032 € - Honoraires agence inclus charge vendeur. AZUR METROPOLE IMMOBILIER[Coordonnées masquées]
Voir plus

Référence: 380
Bien en copropriété. Nombre de lots : 36. Charges de copropriété : 1032 €.
Honoraires à la charge du vendeur.
Barème des honoraires
DPE
A
B
C
D
E
F
G
GES
A
B
C
D
E
F
G

Prêt immobilier

Vous souhaitez connaître votre capacité d’emprunt et trouver le meilleur crédit immobilier ?
Réaliser une simulation gratuite

Appartement à NICE
Appartement à NICE
Appartement à NICE
Appartement à NICE
Appartement à NICE
Appartement à NICE
Appartement à NICE
Appartement à NICE
Appartement à NICE
Appartement à NICE
Ce site est protégé par reCAPTCHA la Politique de confidentialité et les Conditions d’utilisation de Google s’appliquent.
Obtenir un prêt immobilier au meilleur taux ?

En poursuivant votre navigation sans modifier vos paramètres, vous acceptez l'utilisation de cookies susceptibles de réaliser des statistiques de visite. Cliquez ici pour plus d'informations