Puget-sur-argens - appartement 1er étage 3 pièces neuf avec terrasse

— Puget-Sur-Argens 83480 —
262 395 €
68 m²
3 pièces
parkingbalcon/terrasse

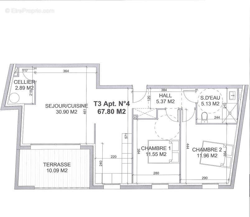
Dans une résidance neuve située en plein coeur de Puget-sur-Argens, découvrez ce superbe appartement 3 pièces de 67,80 m2 situé en 1er étage, avec une terrasse de 10 m2, idéalement conçu pour allier confort et qualité de vie.
Cet appartement se compose d'un séjour lumineux, d'une cuisine ouverte + cellier, de deux chambres, et d'une salle d'eau avec wc.
La résidence répartie sur 3 étages avec ascenseur, offre une prestation soignée :
- Climatisation réversible
- Volets roulants électrique
- Menuiseries en double vitrage
- Materiaux de qualité et finitions modernes.
Vendu avec un parking privatif, possibilité d'acquérir un en supplément pour 9 000 €.
Situé en centre-ville, à proximité immédiate des commerces, écoles et axes autoroutiers, ce bien bénéficie d'un emplacement stratégique tout en offrant un cadre de vie paisible.
Frais de notaire réduit
Idéal résidence principale ou investissement locatif.
Ne manquez pas cette opportunité d'acquérir un bien neuf perfomant et fonctionnel au coeur d'une commune dynamique du Var.
Les informations sur les risques auxquels ce bien est exposé sont disponibles sur le site Géorisques : www.georisques.gouv.fr
Voir plus

Référence: 1127-B104
Bien en copropriété. Nombre de lots : 10.
Honoraires à la charge du vendeur.
Barème des honoraires

Prêt immobilier

Vous souhaitez connaître votre capacité d’emprunt et trouver le meilleur crédit immobilier ?
Réaliser une simulation gratuite

Appartement à PUGET-SUR-ARGENS
Appartement à PUGET-SUR-ARGENS
Appartement à PUGET-SUR-ARGENS
Appartement à PUGET-SUR-ARGENS
Appartement à PUGET-SUR-ARGENS
Appartement à PUGET-SUR-ARGENS
Appartement à PUGET-SUR-ARGENS
Appartement à PUGET-SUR-ARGENS
Appartement à PUGET-SUR-ARGENS
Appartement à PUGET-SUR-ARGENS
Ce site est protégé par reCAPTCHA la Politique de confidentialité et les Conditions d’utilisation de Google s’appliquent.
Obtenir un prêt immobilier au meilleur taux ?

En poursuivant votre navigation sans modifier vos paramètres, vous acceptez l'utilisation de cookies susceptibles de réaliser des statistiques de visite. Cliquez ici pour plus d'informations