Bénéficiez des services de nos partenaires locaux soigneusement sélectionnés
pour vous accompagner dans votre parcours d'achat immobilier

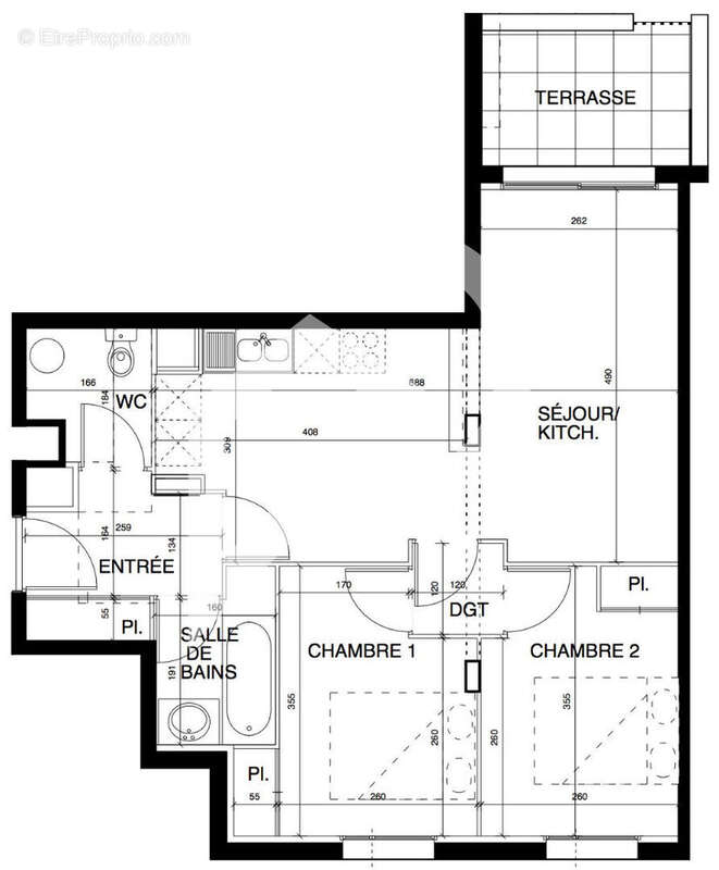
Appartement toulouse 3 pièce(s)

— Toulouse 31300 —
189 900 €
60 m²
3 pièces
parkingbalcon/terrasse

Nos partenaires locaux
A vendre - Appartement T3 - Toulouse - Quartier des Arènes Dans le secteur recherché des Arènes, venez découvrir ce bel appartement T3 de plain-pied, aux espaces parfaitement optimisés et au confort moderne, situé dans une résidence de 2010, 3bis impasse des Arènes. L'entrée dessert un double espace séjour / cuisine lumineux donnant sur une terrasse privative, idéale pour profiter d'un extérieur au calme. La cuisine, moderne, est entièrement meublée et équipée. Côté nuit, deux chambres avec placards, une salle de bains avec baignoire, et de nombreux rangements intégrés dans tout l'appartement offrent un quotidien pratique et agréable. Le logement est conforme aux normes PMR, entièrement accessible et en excellent état général. Une place de stationnement privative en sous-sol sécurisé est incluse : un véritable atout dans ce quartier toulousain. La résidence, calme, bien entretenue et bien gérée, garantit un cadre de vie paisible à deux pas des transports, des écoles et des commodités. Les + : Agencement optimisé Terrasse privative Cuisine équipée Nombreux rangements Accessibilité PMR Place de parking en sous-sol sécurisé Résidence calme et soignée Faibles charges de copropriété Ne laissez pas passer cette opportunité ! Contactez-nous pour organiser une visite. Copropriété de 40 lots - dont 40 lots habitation. (Pas de procédure en cours). Charges annuelles : 680 euros.
Voir plus

Référence: 1907
Bien en copropriété. Nombre de lots : 40. Charges de copropriété : 680 €.
Honoraires à la charge du vendeur.
Barème des honoraires
DPE
A
B
C
D
E
F
G
GES
A
B
C
D
E
F
G

Prêt immobilier

Vous souhaitez connaître votre capacité d’emprunt et trouver le meilleur crédit immobilier ?
Réaliser une simulation gratuite

Appartement à TOULOUSE
Appartement à TOULOUSE
Appartement à TOULOUSE
Appartement à TOULOUSE
Appartement à TOULOUSE
Appartement à TOULOUSE
Appartement à TOULOUSE
Appartement à TOULOUSE
Appartement à TOULOUSE
Appartement à TOULOUSE
Appartement à TOULOUSE
Ce site est protégé par reCAPTCHA la Politique de confidentialité et les Conditions d’utilisation de Google s’appliquent.
Obtenir un prêt immobilier au meilleur taux ?

En poursuivant votre navigation sans modifier vos paramètres, vous acceptez l'utilisation de cookies susceptibles de réaliser des statistiques de visite. Cliquez ici pour plus d'informations