Bénéficiez des services de nos partenaires locaux soigneusement sélectionnés
pour vous accompagner dans votre parcours d'achat immobilier

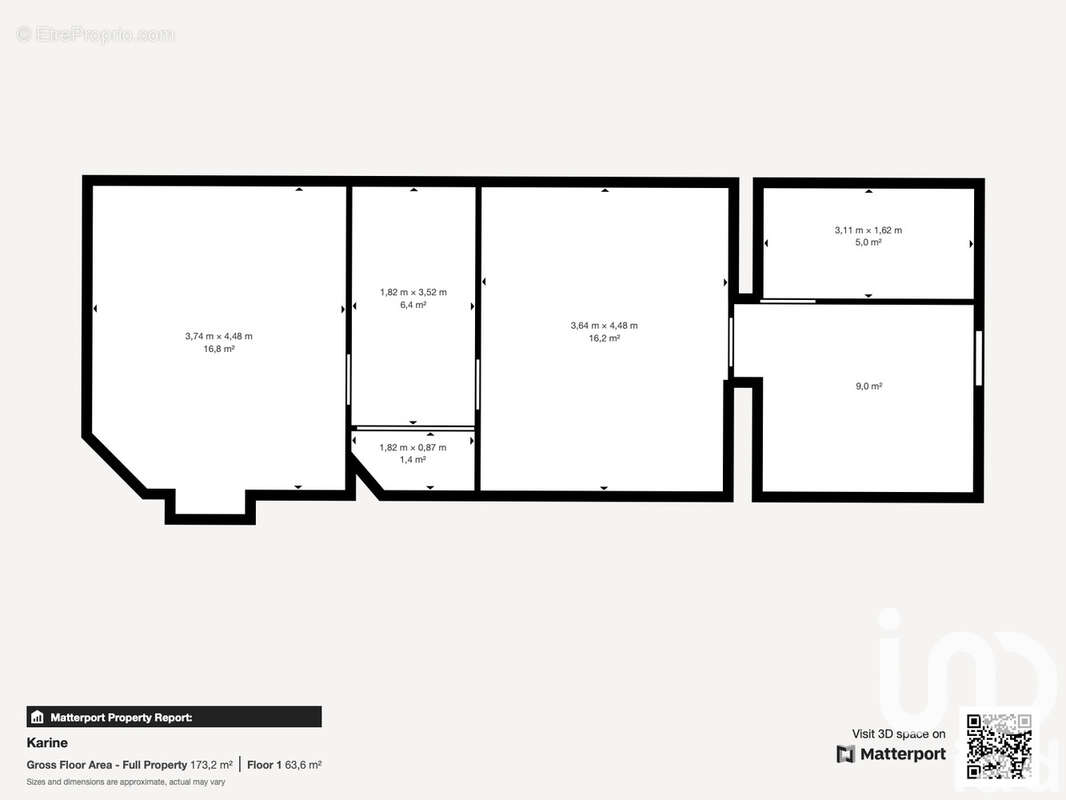
Maison 102m² à montereau-fault-yonne

— Montereau-Fault-Yonne 77130 —
189 000 €
102 m² / 210 m²
5 pièces
jardin

Nos partenaires locaux
Iad France - Frédéric Jarry vous propose : MAISON À USAGE COMMERCIAL EN PLEIN CENTRE-VILLE

Emplacement n°1 : Située à deux pas du Parc des Noues et proche de toutes commodités, cette maison individuelle transformée en locaux professionnels est une véritable opportunité pour lancer ou développer votre activité.

Parfait pour bureaux, cabinet d'assurances, professions libérales, agence ou activité commerciale, ce bien combine le charme de l'habitation avec la fonctionnalité de bureaux entièrement équipés.
À retenir : Surface confortable et bien agencée, espaces de travail prêts à l'emploi, accès facile et visibilité en façade, stationnements à proximité, possibilité de réaménager en logement si besoin.
Idéal pour les professionnels cherchant à s'implanter durablement dans un secteur dynamique et recherché du Sud Seine-et-Marne.


Honoraires d'agence à la charge du vendeur.
Information d'affichage énergétique sur ce bien : classe ENERGIE G indice 542 et classe CLIMAT C indice 18. Les informations sur les risques auxquels ce bien est exposé, y compris l'obligation légale de débroussaillement, sont disponibles sur le site Géorisques : http://www.georisques.gouv.fr.
La présente annonce immobilière a été rédigée sous la responsabilité éditoriale de M Frédéric Jarry mandataire indépendant en immobilier (sans détention de fonds), agent commercial de la SAS I@D France immatriculé au RSAC de MELUN sous le numéro 751 854 746, titulaire de la carte de démarchage immobilier pour le compte de la société I@D France SAS.
Informations LOI ALUR :
Honoraires charge vendeur. (gedeon_6727_31671162)
Voir plus

Référence: 1819610
Honoraires à la charge du vendeur.
DPE
A
B
C
D
E
F
G
GES
A
B
C
D
E
F
G

Prêt immobilier

Vous souhaitez connaître votre capacité d’emprunt et trouver le meilleur crédit immobilier ?
Réaliser une simulation gratuite

Photo 1 - Maison à MONTEREAU-FAULT-YONNE
Photo 1
Photo 2 - Maison à MONTEREAU-FAULT-YONNE
Photo 2
Photo 3 - Maison à MONTEREAU-FAULT-YONNE
Photo 3
Photo 4 - Maison à MONTEREAU-FAULT-YONNE
Photo 4
Photo 5 - Maison à MONTEREAU-FAULT-YONNE
Photo 5
Photo 6 - Maison à MONTEREAU-FAULT-YONNE
Photo 6
Photo 7 - Maison à MONTEREAU-FAULT-YONNE
Photo 7
Photo 8 - Maison à MONTEREAU-FAULT-YONNE
Photo 8
Photo 9 - Maison à MONTEREAU-FAULT-YONNE
Photo 9
Ce site est protégé par reCAPTCHA la Politique de confidentialité et les Conditions d’utilisation de Google s’appliquent.
Obtenir un prêt immobilier au meilleur taux ?

En poursuivant votre navigation sans modifier vos paramètres, vous acceptez l'utilisation de cookies susceptibles de réaliser des statistiques de visite. Cliquez ici pour plus d'informations