Bénéficiez des services de nos partenaires locaux soigneusement sélectionnés
pour vous accompagner dans votre parcours d'achat immobilier

Local d'activite a vendre

— La Meziere 35520 —
1 237 500 €
990 m²

Nos partenaires locaux
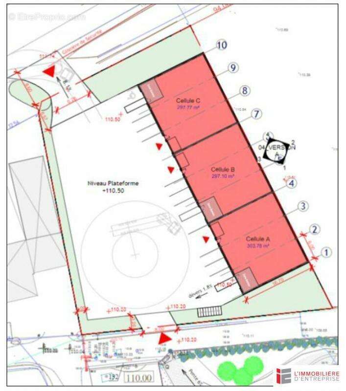
L'Immobilière d'Entreprise vous propose à la vente ce bâtiment neuf situé à La Mézière, d'une surface totale de 990 m², divisible en plusieurs cellules selon vos besoins.Implanté au sein d'un programme situé à La Mézière, ce bien bénéficie d'un environnement dynamique et adapté aux entreprises.Les locaux sont livrés brut de béton, avec réseaux et fluides en attente, permettant un aménagement entièrement personnalisé selon l'usage envisagé.Idéal pour des activités artisanales, industrielles légères ou de stockage, ce site offre un cadre fonctionnel et modulable pour accompagner le développement de votre activité professionnelle.Localisation : La Mézière
Surface : 990 m² (divisibles)
Accessibilité : À proximité des axes routiers principaux
DPE En cours
Voir plus

Référence: RE2318038_BL
Honoraires d'agence de 5% à la charge de l'acquéreur

Prêt immobilier

Vous souhaitez connaître votre capacité d’emprunt et trouver le meilleur crédit immobilier ?
Réaliser une simulation gratuite

Commerce à LA MEZIERE
Commerce à LA MEZIERE
Commerce à LA MEZIERE
Ce site est protégé par reCAPTCHA la Politique de confidentialité et les Conditions d’utilisation de Google s’appliquent.
Obtenir un prêt immobilier au meilleur taux ?

En poursuivant votre navigation sans modifier vos paramètres, vous acceptez l'utilisation de cookies susceptibles de réaliser des statistiques de visite. Cliquez ici pour plus d'informations