Bénéficiez des services de nos partenaires locaux soigneusement sélectionnés
pour vous accompagner dans votre parcours d'achat immobilier

Entre rauzan et castillon

— Saint-Pey-De-Castets 33350 —
249 000 €
123 m² / 2 888 m²
7 pièces
parkingjardin

Nos partenaires locaux
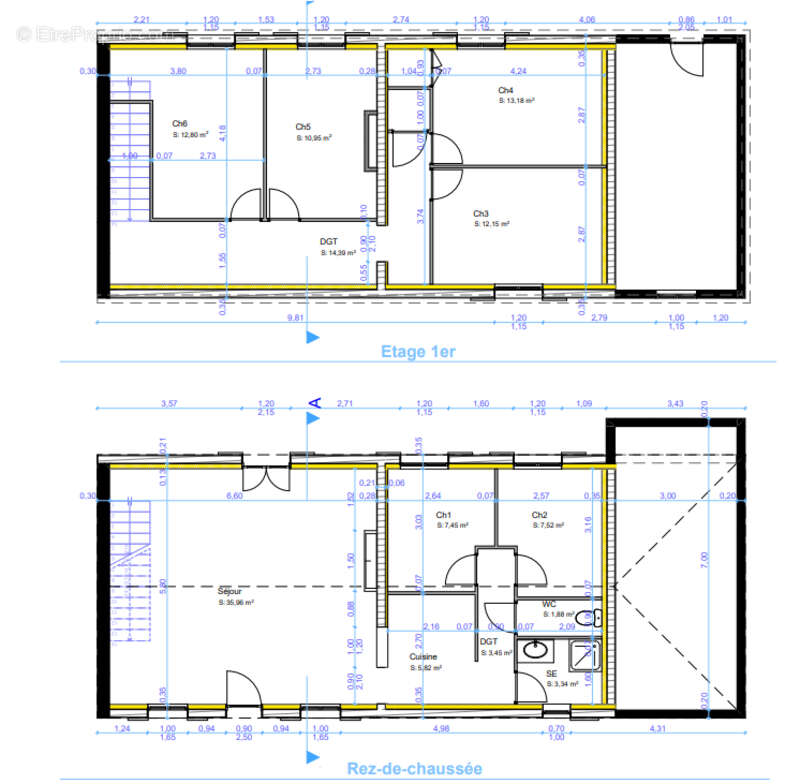
Ancienne maison familiale en pierre entièrement réhabilitée ayant fait l'objet d'une reconstruction à neuf en 2022 suite à incendie et jamais habitée depuis. Elle est construite sur une parcelle clôturée de 658m² et dispose d'une parcelle arborée de 2230m² en bordure de Dordogne de l'autre côte de la route.
Spacieuse et lumineuse la maison comprend en rez de chaussée un vaste séjour avec murs en pierre de parement et une superbe cheminée en pierre, cuisine aménagée, salle d'eau, WC, bureau et lingerie. A l'étage, palier, grand dégagement, quatre chambres. Garage attenant avec grenier au dessus. La maison bénéficie des dernières normes en vigueur et est prête à décorer. Bien idéal pour une primo accession.
Prix de vente : 249 000 euros HAI
Honoraires à charge Vendeur
DPE : C - GES: A
Montant estimé des dépenses annuelles d'énergie pour un usage standard entre1250 euros et 1740 euros indexées aux années 2021, 2022 et 2023 .
Pour visiter et vous accompagner dans votre projet, contactez William ANDRIEU, au [Coordonnées masquées] ou, par courriel à [Coordonnées masquées].
Selon l'article L.561.5 du Code Monétaire et Financier, pour l'organisation de la visite, la présentation d'une pièce d'identité vous sera demandée.
Cette présente annonce a été rédigée sous la responsabilité éditoriale de William ANDRIEU agissant en qualité de conseiller immobilier indépendant sous portage salarial auprès de SAS PROPRIETES PRIVEES, au capital de 44 920 euros, ZAC LE CHÊNE FERRÉ - 44 ALLÉE DES CINQ CONTINENTS 44120 VERTOU; SIRET 487 624 777 00040, RCS Nantes. Carte Professionnelle Transactions sur immeubles et fonds de commerce (T) et Gestion immobilière (G) n°CPI 44[Coordonnées masquées]10 388 délivrée par la CCI Nantes - Saint Nazaire. Compte séquestre n°3[Coordonnées masquées] BPA SAINT-SEBASTIEN-SUR-LOIRE (44230). Garantie GALIAN-SMABTP - 89 rue de la Boétie, 75008 Paris - n°28137 J pour 2 000 000 euros pour T et 120 000 euros pour G. Assurance responsabilité civile professionnelle par GALIAN-SMABTP n° de police 28137.J
Mandat réf : 416352
Le professionnel garantit et sécurise votre projet immobilier.
Les informations sur les risques auxquels ce bien est exposé sont disponibles sur le site Géorisques : www. georisques. gouv. fr
Voir plus

Référence: 416352WAND
Honoraires à la charge du vendeur.
DPE
A
B
C
D
E
F
G
GES
A
B
C
D
E
F
G

Prêt immobilier

Vous souhaitez connaître votre capacité d’emprunt et trouver le meilleur crédit immobilier ?
Réaliser une simulation gratuite

Maison à SAINT-PEY-DE-CASTETS
Maison à SAINT-PEY-DE-CASTETS
Maison à SAINT-PEY-DE-CASTETS
Maison à SAINT-PEY-DE-CASTETS
Maison à SAINT-PEY-DE-CASTETS
Maison à SAINT-PEY-DE-CASTETS
Maison à SAINT-PEY-DE-CASTETS
Maison à SAINT-PEY-DE-CASTETS
Maison à SAINT-PEY-DE-CASTETS
Maison à SAINT-PEY-DE-CASTETS
Maison à SAINT-PEY-DE-CASTETS
Maison à SAINT-PEY-DE-CASTETS
Ce site est protégé par reCAPTCHA la Politique de confidentialité et les Conditions d’utilisation de Google s’appliquent.
Obtenir un prêt immobilier au meilleur taux ?

En poursuivant votre navigation sans modifier vos paramètres, vous acceptez l'utilisation de cookies susceptibles de réaliser des statistiques de visite. Cliquez ici pour plus d'informations