Mazet situé aux issambres à proximité plage et commerces

— Les Issambres 83380 —
257 000 €
37 m²
3 pièces
parkingbalcon/terrasse

Dans une résidence sécurisée et recherchée, idéalement située à proximité immédiate de la plage et des commerces, venez découvrir ce charmant mazet aux Issambres.
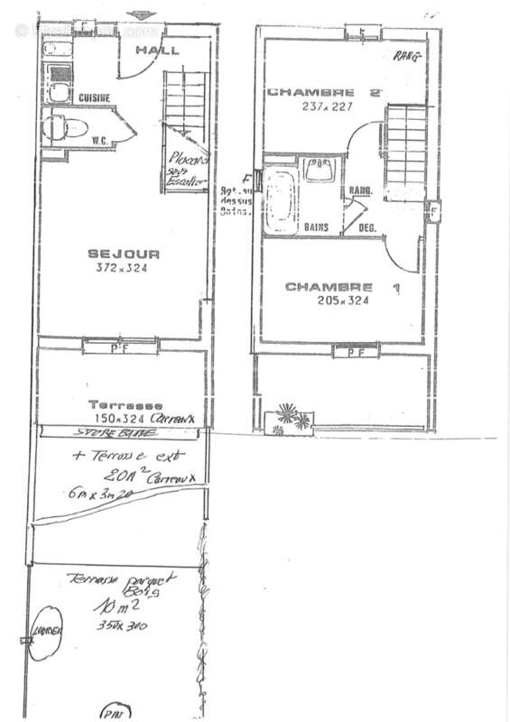
Ce bien se compose au rez-de-chaussée d’un séjour ouvrant sur une spacieuse terrasse, parfait pour vos moments de détente ou repas en extérieur, d’un coin cuisine et un WC inépendant.
À l’étage, vous trouverez deux chambres, dont une avec balcon  offrant un agréable aperçu sur l’environnement verdoyant, ainsi qu’une salle de bains.
Idéal en résidence secondaire ou pour un investissement locatif saisonnier, ce mazet allie confort et emplacement privilégié.
Voir plus

Référence: 3368
Bien en copropriété. Nombre de lots : 28. Charges de copropriété : 1128 €.
Barème des honoraires
DPE
A
B
C
D
E
F
G
GES
A
B
C
D
E
F
G

Prêt immobilier

Vous souhaitez connaître votre capacité d’emprunt et trouver le meilleur crédit immobilier ?
Réaliser une simulation gratuite

Appartement à LES ISSAMBRES
Appartement à LES ISSAMBRES
Appartement à LES ISSAMBRES
Appartement à LES ISSAMBRES
Appartement à LES ISSAMBRES
Appartement à LES ISSAMBRES
Appartement à LES ISSAMBRES
Appartement à LES ISSAMBRES
Appartement à LES ISSAMBRES
Appartement à LES ISSAMBRES
Appartement à LES ISSAMBRES
Appartement à LES ISSAMBRES
Appartement à LES ISSAMBRES
Ce site est protégé par reCAPTCHA la Politique de confidentialité et les Conditions d’utilisation de Google s’appliquent.
Obtenir un prêt immobilier au meilleur taux ?

En poursuivant votre navigation sans modifier vos paramètres, vous acceptez l'utilisation de cookies susceptibles de réaliser des statistiques de visite. Cliquez ici pour plus d'informations