Bénéficiez des services de nos partenaires locaux soigneusement sélectionnés
pour vous accompagner dans votre parcours d'achat immobilier

Appartement 188m² à blois

— Blois 41000 —
370 000 €
188 m²

Nos partenaires locaux

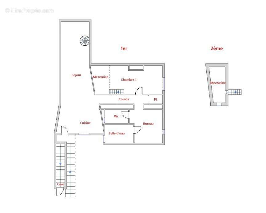
EXCLUSIVITÉ- BLOIS QUARTIER DES ECOLES - ENSEMBLE IMMOBILIER DE 187.75 m² vendu loué

Situé à 10 min à pieds du centre-ville et de ses commerces, ensemble immobilier en monopropriété de 187.75 m² vendu loué et récemment rénové . Il se compose de 2 logements vendus loués (baux récents) de type 4 de 90 m² et 98 m². L'appartement au rez-de-chaussée comprend une terrasse et un jardinet. Chaque logement est loué avec une cave.

L'ensemble des loyers représente 19 200 € par an. Les logements sont en double vitrage, avec un chauffage individuel gaz de ville. Idéal investisseurs.

Les informations sur les risques auxquels ce bien est exposé sont disponibles sur le site Géorisques : www.georisques.gouv.fr

Les honoraires sont à la charge des vendeurs.


Honoraires à la charge du vendeur. Classe énergie D, Classe climat D Montant moyen estimé des dépenses annuelles d'énergie pour un usage standard, établi à partir des prix de l'énergie de l'année 2021 : entre 1720.00 et 2380.00 €. Les informations sur les risques auxquels ce bien est exposé sont disponibles sur le site Géorisques : georisques.gouv.fr.
Voir plus

Référence: 1484-ERV-FMCONSEIL
Honoraires à la charge du vendeur.
Barème des honoraires
DPE
A
B
C
D
E
F
G
GES
A
B
C
D
E
F
G

Prêt immobilier

Vous souhaitez connaître votre capacité d’emprunt et trouver le meilleur crédit immobilier ?
Réaliser une simulation gratuite

Appartement à BLOIS
Appartement à BLOIS
Appartement à BLOIS
Appartement à BLOIS
Appartement à BLOIS
Appartement à BLOIS
Appartement à BLOIS
Appartement à BLOIS
Appartement à BLOIS
Ce site est protégé par reCAPTCHA la Politique de confidentialité et les Conditions d’utilisation de Google s’appliquent.
Obtenir un prêt immobilier au meilleur taux ?

En poursuivant votre navigation sans modifier vos paramètres, vous acceptez l'utilisation de cookies susceptibles de réaliser des statistiques de visite. Cliquez ici pour plus d'informations