Bénéficiez des services de nos partenaires locaux soigneusement sélectionnés
pour vous accompagner dans votre parcours d'achat immobilier

Perigueux local a vendre 1.311m²

— Perigueux 24000 —
950 000 €
1 311 m²
ascenseur

Nos partenaires locaux
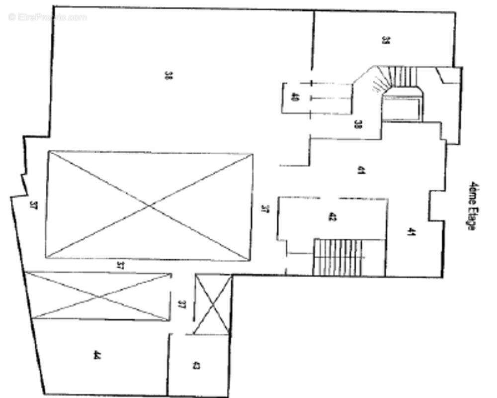
EXCLUSIVITÉ - Local à vendre en plein cœur de PERIGUEUX, dans un immeuble doté d'un ascenseur.
Surface totale d'environ 1.311 m²
L'accès se fait place Francheville ; les fenêtres donnent à la fois sur la place Francheville et sur la place Bugeaud.
Le local se compose :
- De deux espaces en duplex, chaque niveau accessible par les parties communes
- Au premier niveau, un grand espace central bénéficie d'une grande hauteur, avec une verrière.
- En complément, un espace de bureaux donnant sur le côté dégagé de la place Francheville, et un autre le long de la partie plus resserrée de la place, en longueur, se prolongeant jusqu'à la place Bugeaud, avec des pièces non éclairées, à utiliser en salle de réunion ou zone d'archives
- Au second niveau, un grand open space en mezzanine avec vue sur le niveau inférieur, un plus petit en retrait et quelques bureaux fermés.
Syndic bénévole, 3 lots, pas de charges de copropriété, aucune procédure en cours/
Contact : Sophie Garcia-Escobar [Coordonnées masquées].
Les informations sur les risques auxquels ce bien est exposé sont disponibles sur le site Géorisques : www.géorisques.gouv.fr
Voir plus

Référence: 797377
Honoraires à la charge du vendeur.

Prêt immobilier

Vous souhaitez connaître votre capacité d’emprunt et trouver le meilleur crédit immobilier ?
Réaliser une simulation gratuite

Commerce à PERIGUEUX
Commerce à PERIGUEUX
Commerce à PERIGUEUX
Commerce à PERIGUEUX
Commerce à PERIGUEUX
Commerce à PERIGUEUX
Commerce à PERIGUEUX
Commerce à PERIGUEUX
Commerce à PERIGUEUX
Commerce à PERIGUEUX
Commerce à PERIGUEUX
Commerce à PERIGUEUX
Commerce à PERIGUEUX
Commerce à PERIGUEUX
Commerce à PERIGUEUX
Commerce à PERIGUEUX
Commerce à PERIGUEUX
Commerce à PERIGUEUX
Commerce à PERIGUEUX
Ce site est protégé par reCAPTCHA la Politique de confidentialité et les Conditions d’utilisation de Google s’appliquent.
Obtenir un prêt immobilier au meilleur taux ?

En poursuivant votre navigation sans modifier vos paramètres, vous acceptez l'utilisation de cookies susceptibles de réaliser des statistiques de visite. Cliquez ici pour plus d'informations