Bénéficiez des services de nos partenaires locaux soigneusement sélectionnés
pour vous accompagner dans votre parcours d'achat immobilier

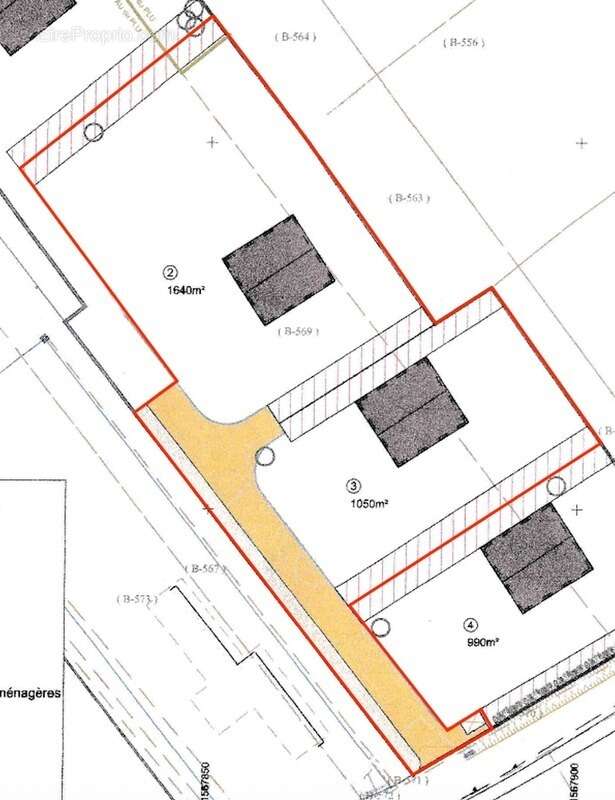
Ensemble de deux terrains constructibles et viabilisés de 3 197 m² à vendre proche de fronton (31)

— Fronton 31620 —
229 000 €
3 197 m²

Nos partenaires locaux
À seulement 6 minutes du centre ville de Fronton sur une charmante commune voisine au calme où il fait bon vivre.

Ces terrains viabilisés et piscinables avec un permis d'aménager accordé fait, 3 197 m² avec son chemin d'accès.
Il a été divisé en 2 lots distinct dont chacun est raccordé et viabilisés, aux différents compteurs individuels : eau, élec et fibre. Un assainissement autonome en micro-station sera à prévoir sur chaque lots pour les nouveaux et heureux propriétaires.

La surface d'emprise au sol totale est de 944 m² pour laisser libre cours à vos différents projets.

Voici le récap et le détail des terrains :

- Lot 1: 1 643 m² - Surface Plancher de 300 m² - Emprise au Sol de 575 m²
- Lot 2: 1 053 m² - Surface Plancher de 300 m² - Emprise au Sol de 369 m²
- Chemin d'accès en castine : 501 m²

- Permis d'aménager : OK pas de contrainte avec la possibilité de créer des R+1 sur chaque lots
- Etude G1 : OK
- Terrains viabilisés : OK
- Assainissement en micro-station à prévoir

Soit au total :

- 3 197 m² de terrain à bâtir
- 600 m² de Surface Plancher (surface habitable)
- 944 m² d'Emprise au Sol (maison + terrasse + garage + piscine)

Le projet est un ensemble de 4 lots dont deux sont déjà vendus. Il en reste plus que 2/4 et ce sont les derniers à vendre sur la commune.

N'attendez-plus. Contactez-moi au plus vite pour une visite !
Les honoraires sont à la charge du vendeur.
Les informations sur les risques auxquels ce bien est exposé sont disponibles sur le site Géorisques : www. georisques. gouv. fr.

Réseau Immobilier CAPIFRANCE - Votre agent commercial (RSAC N°884 985 748 - Greffe de MONTAUBAN) Flavien CORTESE Entrepreneur Individuel [Coordonnées masquées] - Réf.917216
Voir plus

Référence: 340931740270
Honoraires à la charge du vendeur.

Prêt immobilier

Vous souhaitez connaître votre capacité d’emprunt et trouver le meilleur crédit immobilier ?
Réaliser une simulation gratuite

Terrain à FRONTON
Terrain à FRONTON
Terrain à FRONTON
Terrain à FRONTON
Terrain à FRONTON
Terrain à FRONTON
Ce site est protégé par reCAPTCHA la Politique de confidentialité et les Conditions d’utilisation de Google s’appliquent.
Obtenir un prêt immobilier au meilleur taux ?

En poursuivant votre navigation sans modifier vos paramètres, vous acceptez l'utilisation de cookies susceptibles de réaliser des statistiques de visite. Cliquez ici pour plus d'informations