Bénéficiez des services de nos partenaires locaux soigneusement sélectionnés
pour vous accompagner dans votre parcours d'achat immobilier

Mérignac capeyron - maison 174 m2 - a visiter sans tarder

— Merignac 33700 —
490 000 €
172 m² / 1 000 m²
7 pièces
parkingbalcon/terrassejardin

Nos partenaires locaux
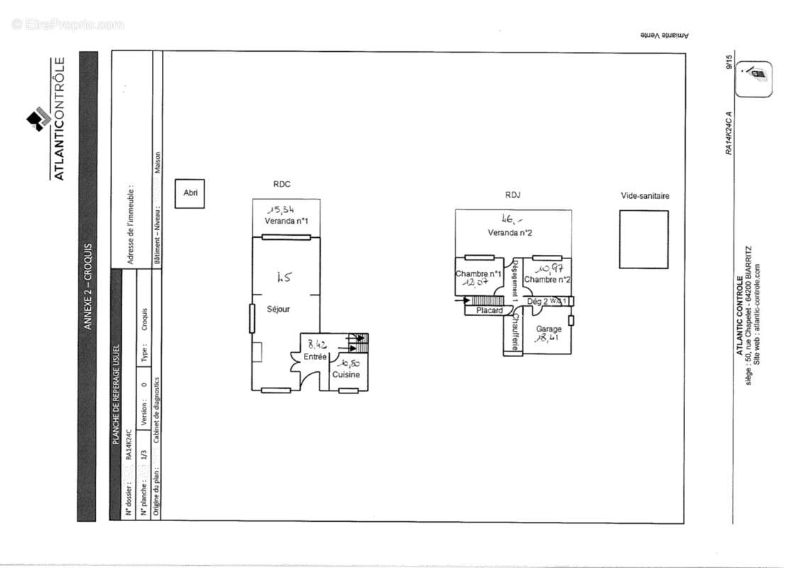
Opportunité à saisir ! Capeyron, belle maison familialle non mitoyenne.
Elle se compose au rez-de-chaussée d'une entrée, d'une cuisine séparée équipée et aménagée, d'un vaste salon/salle à manger traversant.
En demi-étage, un palier dessert trois chambres (dont 2 avec cabinet de toilette), une salle de bains/d'eau et un wc séparé.
Le rez-de-jardin comprend un dégagement, deux chambres, un wc et une buanderie. Un garage est attenant.
La parcelle de 1000 m2 permet aisément l'implantation d'une piscine à l'abri des regards. Deux vérandas, dont une de 50 m2, offrent des espaces supplémentaires afin d'installer un jardin d'hiver, une cuisine d'été, un espace jeu pour les enfants...
Véritable cocon familial, vous apprécierez la cheminée fonctionnelle, les belles hauteurs sous plafond, le plancher massif des chambres, le stationnement sur la parcelle ainsi que la possibilité d'exploiter les combles.
A 5 mn à pied des commerces de la Place de Capeyron, à moins de 10 minutes en voiture de la rocade sortie 9. Ecoles maternelle, élémentaire et collège proches.
Taxe foncière : 3192,00 €, DPE : D.
Certaines photographies ont été retouchées par un procédé numérique (IA). Elles sont non contractuelles et destinées à illustrer le bien.

'Les informations sur les risques auxquels ce bien est exposé sont disponibles sur le site : www.georisques.gouv.fr'
Voir plus

Honoraires d'agence de 3.16% à la charge de l'acquéreur
Barème des honoraires
DPE
A
B
C
D
E
F
G
GES
A
B
C
D
E
F
G

Prêt immobilier

Vous souhaitez connaître votre capacité d’emprunt et trouver le meilleur crédit immobilier ?
Réaliser une simulation gratuite

Maison à MERIGNAC
Maison à MERIGNAC
Maison à MERIGNAC
Maison à MERIGNAC
Maison à MERIGNAC
Maison à MERIGNAC
Maison à MERIGNAC
Maison à MERIGNAC
Maison à MERIGNAC
Maison à MERIGNAC
Maison à MERIGNAC
Maison à MERIGNAC
Maison à MERIGNAC
Maison à MERIGNAC
Maison à MERIGNAC
Maison à MERIGNAC
Maison à MERIGNAC
Maison à MERIGNAC
Maison à MERIGNAC
Maison à MERIGNAC
Maison à MERIGNAC
Ce site est protégé par reCAPTCHA la Politique de confidentialité et les Conditions d’utilisation de Google s’appliquent.
Obtenir un prêt immobilier au meilleur taux ?

En poursuivant votre navigation sans modifier vos paramètres, vous acceptez l'utilisation de cookies susceptibles de réaliser des statistiques de visite. Cliquez ici pour plus d'informations