Bénéficiez des services de nos partenaires locaux soigneusement sélectionnés
pour vous accompagner dans votre parcours d'achat immobilier

A vendre la trinite plouzane - maison 4 chambres quartier calme

— Plouzane 29280 —
265 000 €
107 m² / 370 m²
6 pièces
parkingjardin

Nos partenaires locaux
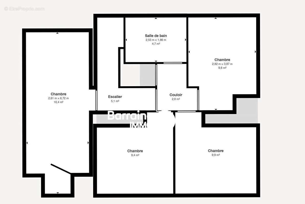
A VENDRE - PLOUZANÉ LA TRINITE. Réf : PZ00265-ZR Située dans un quartier résidentiel paisible de La Trinité à Plouzané, découvrez cette maison familiale de 108 m², construite en 2010, offrant un cadre de vie agréable à proximité des commodités et des transports. Au rez-de-chaussée, vous serez séduit par une pièce de vie spacieuse et lumineuse traversante, donnant un accès direct à un jardin bien exposé, parfait pour vos moments de détente. Vous trouverez également une cuisine indépendante aménagée, des toilettes séparées et un garage attenant. A l'étage, la maison propose quatre chambres, dont une suite parentale avec salle d'eau, une salle de bains familiale et des toilettes indépendantes, offrant tout le confort pour une vie de famille. La maison dispose de prestations modernes : chauffage au gaz de ville, fenêtres en PVC double vitrage, volets roulants, fibre optique, et repose sur un terrain clos de 370 m². Idéale pour une famille recherchant le calme sans s'éloigner de la ville. L'École Primaire Publique Coat Edern est implantée à moins de 10 minutes à pied. Niveau transports en commun, il y a la ligne de bus 50 (Lannével-Braz) dans les alentours. Les nationales N12, N265 et N165 et l'aéroport Brest-Bretagne sont accessibles à moins de 15 km. On trouve deux restaurants et un commerce à quelques minutes à peine. Les informations sur les risques auxquels ce bien est exposé sont disponibles sur le site Géorisques : www.georisques.gouv.fr. La visite virtuelle est disponible pour vous offrir un premier aperçu de ce bien. Votre Agence Barraine IMMO - Plouzané vous invite à découvrir toutes les originalités de cette maison en vente en prenant RDV avec l'un de nos négociateurs immobilier. (6.00 % honoraires TTC à la charge de l'acquéreur.)
Voir plus

Référence: PZ00265-ZR
Honoraires d'agence de 6% à la charge de l'acquéreur
DPE
A
B
C
D
E
F
G
GES
A
B
C
D
E
F
G

Prêt immobilier

Vous souhaitez connaître votre capacité d’emprunt et trouver le meilleur crédit immobilier ?
Réaliser une simulation gratuite

Maison à PLOUZANE
Maison à PLOUZANE
Maison à PLOUZANE
Maison à PLOUZANE
Maison à PLOUZANE
Maison à PLOUZANE
Maison à PLOUZANE
Maison à PLOUZANE
Maison à PLOUZANE
Maison à PLOUZANE
Maison à PLOUZANE
Maison à PLOUZANE
Maison à PLOUZANE
Maison à PLOUZANE
Maison à PLOUZANE
Maison à PLOUZANE
Maison à PLOUZANE
Maison à PLOUZANE
Ce site est protégé par reCAPTCHA la Politique de confidentialité et les Conditions d’utilisation de Google s’appliquent.
Obtenir un prêt immobilier au meilleur taux ?

En poursuivant votre navigation sans modifier vos paramètres, vous acceptez l'utilisation de cookies susceptibles de réaliser des statistiques de visite. Cliquez ici pour plus d'informations