Bénéficiez des services de nos partenaires locaux soigneusement sélectionnés
pour vous accompagner dans votre parcours d'achat immobilier

Appartement 60m² à chartres

— Chartres 28000 —
184 500 €
60 m²
3 pièces
parkingbalcon/terrasseascenseur

Nos partenaires locaux
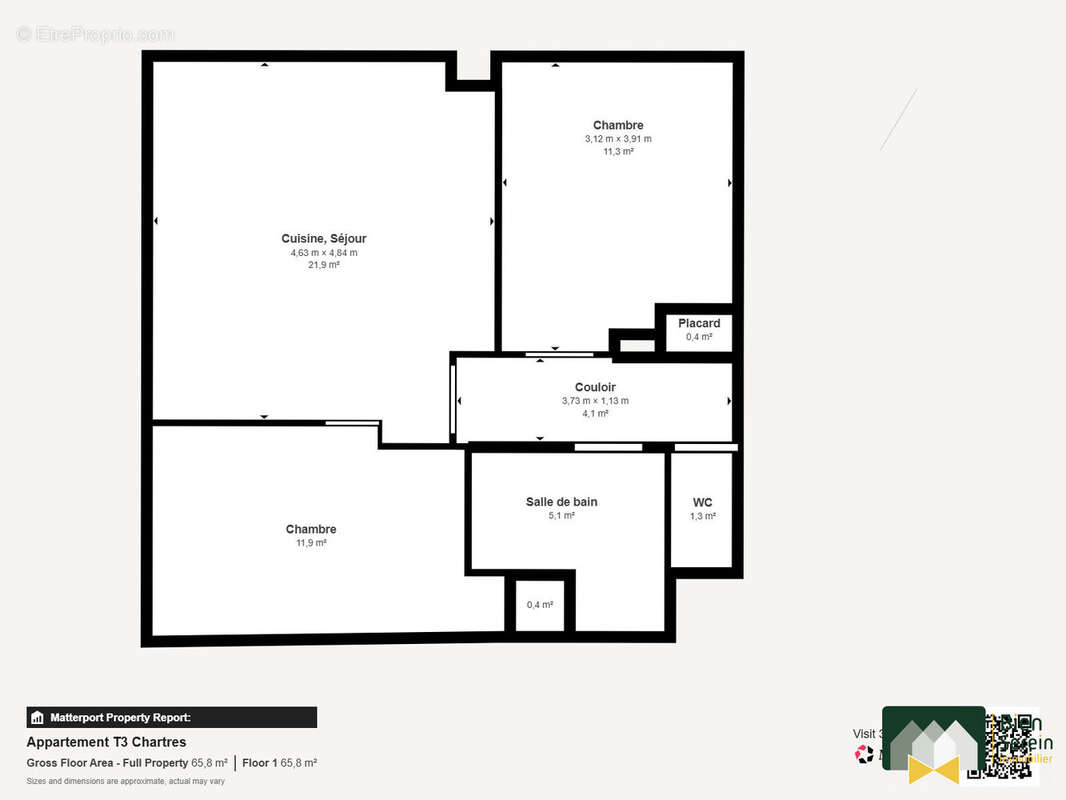
Bienvenue dans votre futur chez-vous ! Nous sommes ravis de vous présenter ce superbe appartement de 3 pièces, lumineux et fonctionnel. Situé au coeur d'un environnement paisible et bien desservi, ce bien vous offrira un cadre de vie idéal alliant confort et modernité.

Découvrez l'intérieur :
- Entrée avec rangements
- Grand séjour avec cuisine ouverte
- Deux chambres
- Salle d'eau
- Wc indépendant

Espace extérieur :
- Balcon exposé Est
- Un stationnement en sous sol

Côté confort :
- Résidence très récente de 2022
- Aucun travaux à prévoir
- Agréable vue sur la verdure

L'emplacement :
Les écoles maternelles et élémentaires sont à 10 minutes à pied, tandis que les collèges sont accessibles en 5 minutes en voiture. Plusieurs restaurants et une crèche sont également à proximité immédiate.

N'hésitez pas à contacter votre agent au Noeud Pap' pour obtenir plus d'informations et visiter cet appartement !

Honoraires à la charge du vendeur. Classe énergie B, Classe climat A Montant moyen estimé des dépenses annuelles d'énergie pour un usage standard, établi à partir des prix de l'énergie de l'année 2021 : entre 376.00 et 508.00 €. Les informations sur les risques auxquels ce bien est exposé sont disponibles sur le site Géorisques : georisques.gouv.fr.

Votre conseiller Bien Serein immobilier : Doriane BARBE
Agent commercial (Entreprise individuelle)
RSAC 829314210
Voir plus

Référence: 667-BIENSEREIN28
Honoraires à la charge du vendeur.
Barème des honoraires
DPE
A
B
C
D
E
F
G
GES
A
B
C
D
E
F
G

Prêt immobilier

Vous souhaitez connaître votre capacité d’emprunt et trouver le meilleur crédit immobilier ?
Réaliser une simulation gratuite

Appartement à CHARTRES
Appartement à CHARTRES
Appartement à CHARTRES
Chambre 1 - Appartement à CHARTRES
Chambre 1
salle d'eau - Appartement à CHARTRES
salle d'eau
Chambre 2 - Appartement à CHARTRES
Chambre 2
Balcon - Appartement à CHARTRES
Balcon
plans - Appartement à CHARTRES
plans
Ce site est protégé par reCAPTCHA la Politique de confidentialité et les Conditions d’utilisation de Google s’appliquent.
Obtenir un prêt immobilier au meilleur taux ?

En poursuivant votre navigation sans modifier vos paramètres, vous acceptez l'utilisation de cookies susceptibles de réaliser des statistiques de visite. Cliquez ici pour plus d'informations