Maison 164m² à tavers

— Tavers 45190 —
306 500 €
164 m² / 1 850 m²
7 pièces
jardin

Iad France - Stephanie Dubreu vous propose : Proche des bords de Loire, cette maison de 166 m² sur sous-sol complet se compose:
Au rdc d'une entrée avec de nombreux placards, d'un espace de vie climatisé de plus de 40 m²( un salon avec cheminée à foyer ouvert avec accès véranda et une salle à manger y accédant également), d'une cuisine séparée aménagée et équipée, d'une belle véranda, de 2 chambres avec placards dont une avec accès véranda, d'une salle d'eau et d'un wc séparé.
À l'étage, un couloir dessert 3 chambres avec placards, une salle d'eau, un wv séparé et un grenier pouvant être aménagé selon ses besoins.
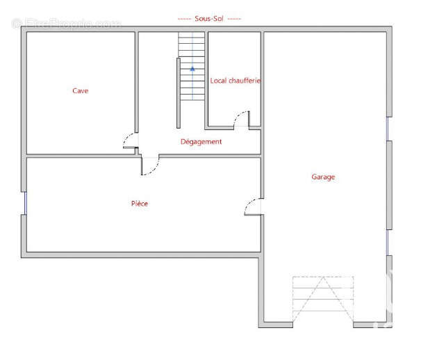
Un grand sous-sol sur la totalité de la maison avec porte sectionnelle électrique permet le stationnement de 2 véhicules, une très grande pièce avec fenêtre, une cave et une chaufferie.
L'extérieur possède une cabane permettant d'abriter une voiture, différents abris, places de stationnements et une mare.
Le terrain est piscinable.
L'ensemble de la maison est équipée de double vitrage, de volets électriques, d'un système d'alarme et d'un adoucisseur.
Le terrain de 1850 m²est clos et arboré. de 1850 m².

Honoraires d'agence à la charge du vendeur.
Information d'affichage énergétique sur ce bien : classe ENERGIE D indice 236 et classe CLIMAT D indice 44. Les informations sur les risques auxquels ce bien est exposé, y compris l'obligation légale de débroussaillement, sont disponibles sur le site Géorisques : http://www.georisques.gouv.fr.
La présente annonce immobilière a été rédigée sous la responsabilité éditoriale de Mme Stephanie Dubreu mandataire indépendant en immobilier (sans détention de fonds), agent commercial de la SAS I@D France immatriculé au RSAC de ORLEANS sous le numéro 889558748, titulaire de la carte de démarchage immobilier pour le compte de la société I@D France SAS.
Informations LOI ALUR :
Honoraires charge vendeur. (gedeon_6727_31682458)
Voir plus

Référence: 1819915
Honoraires à la charge du vendeur.
DPE
A
B
C
D
E
F
G
GES
A
B
C
D
E
F
G

Prêt immobilier

Vous souhaitez connaître votre capacité d’emprunt et trouver le meilleur crédit immobilier ?
Réaliser une simulation gratuite

Photo 1 - Maison à TAVERS
Photo 1
Photo 2 - Maison à TAVERS
Photo 2
Photo 3 - Maison à TAVERS
Photo 3
Photo 4 - Maison à TAVERS
Photo 4
Photo 5 - Maison à TAVERS
Photo 5
Photo 6 - Maison à TAVERS
Photo 6
Photo 7 - Maison à TAVERS
Photo 7
Photo 8 - Maison à TAVERS
Photo 8
Photo 9 - Maison à TAVERS
Photo 9
Ce site est protégé par reCAPTCHA la Politique de confidentialité et les Conditions d’utilisation de Google s’appliquent.
Obtenir un prêt immobilier au meilleur taux ?

En poursuivant votre navigation sans modifier vos paramètres, vous acceptez l'utilisation de cookies susceptibles de réaliser des statistiques de visite. Cliquez ici pour plus d'informations