Bénéficiez des services de nos partenaires locaux soigneusement sélectionnés
pour vous accompagner dans votre parcours d'achat immobilier

Appartement 37m² à angers

— Angers 49100 —
118 175 €
37 m²
2 pièces

Nos partenaires locaux
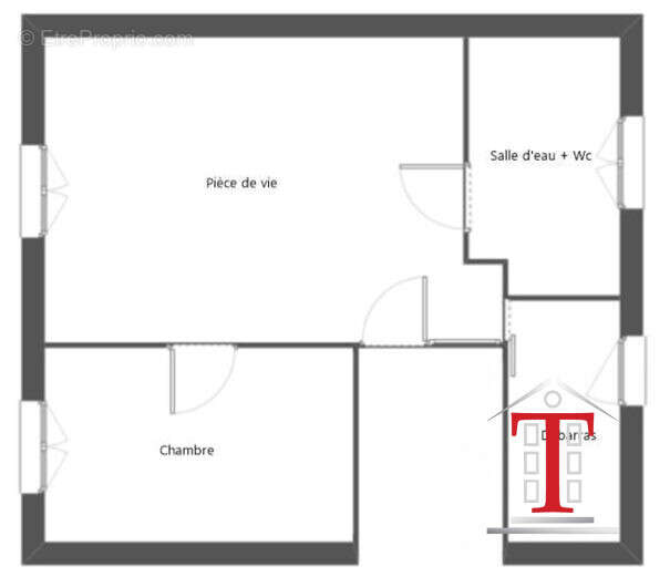
ANGERS quartier Victor Hugo a 15mn à pieds du centre ville, charmant T2 au 2ème et dernier étage d'une petite copropriété, traversant et très lumineux, une rénovation énergétique procurera à cet appartement un confort idéal. Passé le porche, vous pourrez ranger votre vélo en toute sécurité.

Honoraires inclus de 7.43% TTC à la charge de l'acquéreur. Prix hors honoraires 110 000 €. Dans une copropriété de 11 lots. Quote-part moyenne du budget prévisionnel 456 €/an. Aucune procédure n'est en cours. Classe énergie G, Classe climat C Logement à consommation énergétique excessive. Montant estimé des dépenses annuelles d'énergie pour un usage standard : entre 1930.00 € et 2640.00 € sur les années 2021, 2022 et 2023 (abonnements compris). Les informations sur les risques auxquels ce bien est exposé sont disponibles sur le site Géorisques : georisques.gouv.fr.

Carte pro. CPI 49[Coordonnées masquées]24 506 TGS
AC CPI 49[Coordonnées masquées]00 247
Voir plus

Référence: FD3854-CABINETTAPISSIER
Bien en copropriété. Nombre de lots : 11. Charges de copropriété : 456 €.
Honoraires d'agence de 7.43% à la charge de l'acquéreur
Barème des honoraires
DPE
A
B
C
D
E
F
G
GES
A
B
C
D
E
F
G

Prêt immobilier

Vous souhaitez connaître votre capacité d’emprunt et trouver le meilleur crédit immobilier ?
Réaliser une simulation gratuite

Appartement à ANGERS
Appartement à ANGERS
Appartement à ANGERS
Appartement à ANGERS
Appartement à ANGERS
Appartement à ANGERS
Appartement à ANGERS
Ce site est protégé par reCAPTCHA la Politique de confidentialité et les Conditions d’utilisation de Google s’appliquent.
Obtenir un prêt immobilier au meilleur taux ?

En poursuivant votre navigation sans modifier vos paramètres, vous acceptez l'utilisation de cookies susceptibles de réaliser des statistiques de visite. Cliquez ici pour plus d'informations