Bénéficiez des services de nos partenaires locaux soigneusement sélectionnés
pour vous accompagner dans votre parcours d'achat immobilier

Magnifique appartement 5 pièces au cœur du faubourg de l'arche à pied du cnit

— Courbevoie 92400 —
699 000 €
101 m²
5 pièces
parkingbalcon/terrasseascenseur

Nos partenaires locaux
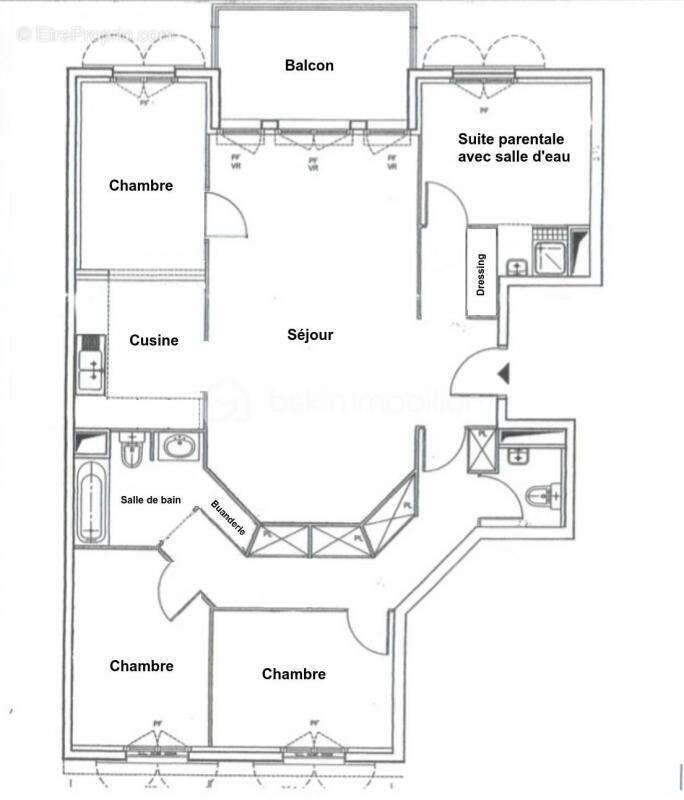
Laissez-vous séduire par ce magnifique appartement traversant de 5 pièces, d'une surface de 101 m², situé au cœur du Faubourg de l'Arche dans l'un des quartiers les plus prisés.
À seulement 2 minutes à pied du tramway T2 et 5 minutes du CNIT et du quartier d'affaires de La Défense, vous bénéficiez d'un accès immédiat à un large choix de transports : Tram T2, bus (73, 277, 363), métro ligne 1, RER A et E, lignes L et U. vous permettant de rejoindre rapidement le centre de Paris.

L'appartement se compose de 4 chambres, dont une belle suite parentale avec salle d'eau privative. La distribution a été pensée pour votre confort : une entrée avec penderie, un double séjour lumineux ouvrant sur un balcon, une cuisine américaine moderne, entièrement équipée et aménagée, parfaitement intégrée à l'espace de vie.

Le coin nuit offre deux chambres calmes, une salle de bains et un WC séparé. De nombreux rangements sont présents dans l'ensemble de l'appartement.

Situé au 8e étage avec ascenseur dans une résidence privée, sécurisée avec gardien, ce bien est complété par une cave et un emplacement de stationnement.

Ne manquez pas cette opportunité rare de vivre dans un appartement d'exception, baigné de lumière, avec une belle terrasse et une vue dégagée.
Contactez-moi dès maintenant pour organiser une visite – disponible 7j/7 !

Cette annonce référence 289968 vous est présentée par votre agent commercial BSK Immobilier SIHAM GIRARD (EI) immatriculé au RSAC de PONTOISE (95300) sous le numéro 9[Coordonnées masquées]018.

Prix du bien : 699 000,00 €
Les honoraires d'agence sont à la charge du vendeur.

A propos de la copropriété :
Pas de procédure en cours.
Nombre de lots : 3
Charges prévisionnelles annuelles : 5 500,00 €

Non soumis au DPE.

Les informations sur les risques auxquels ce bien est exposé sont disponibles sur le site Géorisques : www.georisques.gouv.fr
Voir plus

Référence: 289968
Bien en copropriété. Nombre de lots : 3. Charges de copropriété : 458 €.
Honoraires à la charge du vendeur.

Prêt immobilier

Vous souhaitez connaître votre capacité d’emprunt et trouver le meilleur crédit immobilier ?
Réaliser une simulation gratuite

Appartement à COURBEVOIE
Appartement à COURBEVOIE
Appartement à COURBEVOIE
Appartement à COURBEVOIE
Appartement à COURBEVOIE
Appartement à COURBEVOIE
Appartement à COURBEVOIE
Appartement à COURBEVOIE
Appartement à COURBEVOIE
Appartement à COURBEVOIE
Appartement à COURBEVOIE
Appartement à COURBEVOIE
Appartement à COURBEVOIE
Appartement à COURBEVOIE
Appartement à COURBEVOIE
Appartement à COURBEVOIE
Appartement à COURBEVOIE
Appartement à COURBEVOIE
Appartement à COURBEVOIE
Appartement à COURBEVOIE
Appartement à COURBEVOIE
Appartement à COURBEVOIE
Appartement à COURBEVOIE
Appartement à COURBEVOIE
Appartement à COURBEVOIE
Appartement à COURBEVOIE
Appartement à COURBEVOIE
Appartement à COURBEVOIE
Appartement à COURBEVOIE
Ce site est protégé par reCAPTCHA la Politique de confidentialité et les Conditions d’utilisation de Google s’appliquent.
Obtenir un prêt immobilier au meilleur taux ?

En poursuivant votre navigation sans modifier vos paramètres, vous acceptez l'utilisation de cookies susceptibles de réaliser des statistiques de visite. Cliquez ici pour plus d'informations