Bénéficiez des services de nos partenaires locaux soigneusement sélectionnés
pour vous accompagner dans votre parcours d'achat immobilier

Ensemble immobilier en pierres - maison principale 190 m2 et dépendances

— Foulognes 14240 —
268 000 €
190 m² / 1 670 m²
6 pièces
jardin

Nos partenaires locaux
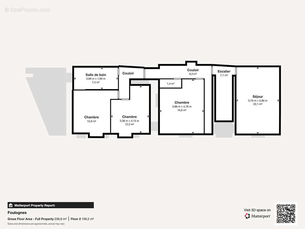
ENSEMBLE IMMOBILIER EN PIERRES - MAISON PRINCIPALE 190 M2 ET DÉPENDANCES Votre agence Rue du Particulier vous propose à la vente cet ensemble immobilier, composé d'une maison principale de 190 m2 habitables et de 5 dépendances dont garages, l'ensemble est édifié sur une parcelle de 1 670 m2 situé à 18 minutes de BAYEUX SUD. La maison principale se compose au rez-de-chaussée d'une entrée donnant accès à une salle d'eau, un wc indépendant et un local technique. Vous retrouvez une cuisine aménagée et équipée, une salle à manger de 28,3 m2 et un salon de 22,3 m2. A l'étage, vous disposez de 4 GRANDES chambres de 12,2 m2, 12,9 m2, 16,9 m2 et 22,1 m2, une salle d'eau avec 2 meubles vasque et 1 WC indépendant. En complément, des bâtiments en pierres d'environ 350 m² au sol, sont disponibles. Bien que nécessitant une rénovation complète ces structures offrent un potentiel considérable pour des projets de gîtes. Huisseries en BOIS et PVC DOUBLE VITRAGE. Chauffage au fioul. Taxe foncière : 915 euros. DPE effectué en 2023 : Montant estimé des dépenses annuelles d'énergie pour un usage standard : entre 3 040 euros et 4 160 euros. Prix moyens des énergies indexés au 01/01/2021 (abonnements compris). DPE : F / GES : F Consommation énergie primaire : 231 kWh/m2/an Les informations sur les risques auxquels ce bien est exposé sont disponibles sur le site Géorisques : https://www.georisques.gouv.fr/ Honoraires à la charge du vendeur.
Voir plus

Référence: B328
DPE
A
B
C
D
E
F
G
GES
A
B
C
D
E
F
G

Prêt immobilier

Vous souhaitez connaître votre capacité d’emprunt et trouver le meilleur crédit immobilier ?
Réaliser une simulation gratuite

Maison à FOULOGNES
Maison à FOULOGNES
Maison à FOULOGNES
Maison à FOULOGNES
Maison à FOULOGNES
Maison à FOULOGNES
Maison à FOULOGNES
Maison à FOULOGNES
Maison à FOULOGNES
Maison à FOULOGNES
Maison à FOULOGNES
Maison à FOULOGNES
Maison à FOULOGNES
Maison à FOULOGNES
Ce site est protégé par reCAPTCHA la Politique de confidentialité et les Conditions d’utilisation de Google s’appliquent.
Obtenir un prêt immobilier au meilleur taux ?

En poursuivant votre navigation sans modifier vos paramètres, vous acceptez l'utilisation de cookies susceptibles de réaliser des statistiques de visite. Cliquez ici pour plus d'informations