Bénéficiez des services de nos partenaires locaux soigneusement sélectionnés
pour vous accompagner dans votre parcours d'achat immobilier

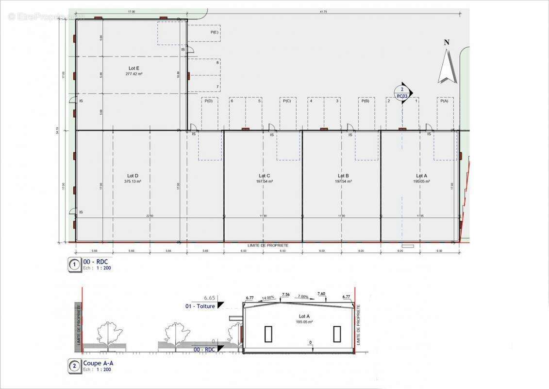
Local d'activite a vendre

— La Cote-Saint-Andre 38260 —
106 732 €
95 m²

Nos partenaires locaux
Programme neuf avec des surfaces disponibles de 95 m² à 1 250 m² bâtiment entièrement isolé avec des hauteurs sous toiture de 6.50 à 7.50 mètres - dalle béton charge lourde - portes sectionnelle motorisées de 3.50 x 4.00 mH - livrés brut avec fluides en attente - courant 220/380 V et 36 Kw - disponible gaz de ville et fibre - terrain clos bitumé avec portail motorisé sur horloge - éclairage extérieur - accessible aux gros porteurs - situé proche des axes.

Référence: 38_0262
Honoraires d'agence de 7% à la charge de l'acquéreur

Prêt immobilier

Vous souhaitez connaître votre capacité d’emprunt et trouver le meilleur crédit immobilier ?
Réaliser une simulation gratuite

Commerce à LA COTE-SAINT-ANDRE
Commerce à LA COTE-SAINT-ANDRE
Commerce à LA COTE-SAINT-ANDRE
Commerce à LA COTE-SAINT-ANDRE
Commerce à LA COTE-SAINT-ANDRE
Ce site est protégé par reCAPTCHA la Politique de confidentialité et les Conditions d’utilisation de Google s’appliquent.
Obtenir un prêt immobilier au meilleur taux ?

En poursuivant votre navigation sans modifier vos paramètres, vous acceptez l'utilisation de cookies susceptibles de réaliser des statistiques de visite. Cliquez ici pour plus d'informations