Gaillard, maison à rénover avec fort potentiel

— Gaillard 74240 —
530 000 €
130 m² / 603 m²
5 pièces
parkingjardin

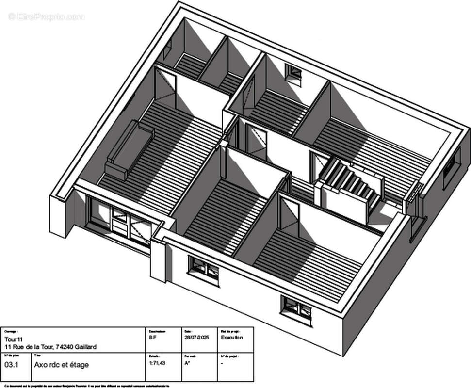
Découvrez cette maison de 130 m2 prête à être transformée selon vos goûts, située dans un secteur résidentiel et calme de Gaillard rue de la Tour . L'emplacement est idéal : vous êtes au pied de la voie verte et à seulement 200 mètres de l’arrêt du tramway. La maison, répartie sur deux plateaux de 65 m2 chacun, vous offre une totale liberté d'aménagement. Les plans actuels proposent : Quatre chambres, dont une suite parentale, deux salles d’eau et deux toilettes.
Pour faciliter votre projet, un devis complet avec différentes possibilités compris entre 150000 euros et 180000 euros est déjà disponible pour une rénovation 'clé en main', incluant : une création rénovation complète intérieur hors cuisine, isolation extérieur plus isolation toiture, fenêtres double vitrage avec stores électriques. Système de chauffage au gaz de ville avec radiateurs. Portail coulissant motorisé. L'ensemble sur un terrain de 603 m2 entièrement clôturé avec 3 places de parking et prêt à être engazonné.
Tous les plans d'architecte et les schémas des réseaux sont disponibles pour vous permettre de concrétiser une maison à votre image. Ne manquez pas cette opportunité unique de créer la maison de vos rêves !
E.I 478 370 224 R.S.A.C Thonon les Bains ADC 74[Coordonnées masquées]00 676
Voir plus

Référence: 2350
Honoraires d'agence de 3.77% à la charge de l'acquéreur
Barème des honoraires
DPE
A
B
C
D
E
F
G
GES
A
B
C
D
E
F
G

Prêt immobilier

Vous souhaitez connaître votre capacité d’emprunt et trouver le meilleur crédit immobilier ?
Réaliser une simulation gratuite

Maison à GAILLARD
Maison à GAILLARD
Maison à GAILLARD
Maison à GAILLARD
Maison à GAILLARD
Maison à GAILLARD
Maison à GAILLARD
Ce site est protégé par reCAPTCHA la Politique de confidentialité et les Conditions d’utilisation de Google s’appliquent.
Obtenir un prêt immobilier au meilleur taux ?

En poursuivant votre navigation sans modifier vos paramètres, vous acceptez l'utilisation de cookies susceptibles de réaliser des statistiques de visite. Cliquez ici pour plus d'informations