Ensemble immobilier - local commercial, partie production et son habitation avec vue sur rivière

— Connerre 72160 —
142 900 €
160 m² / 388 m²
7 pièces

Situé en centre bourg, dans un environnement calme et à proximité immédiate des commodités, cet ensemble immobilier vous offrira de nombreuses possibilités.

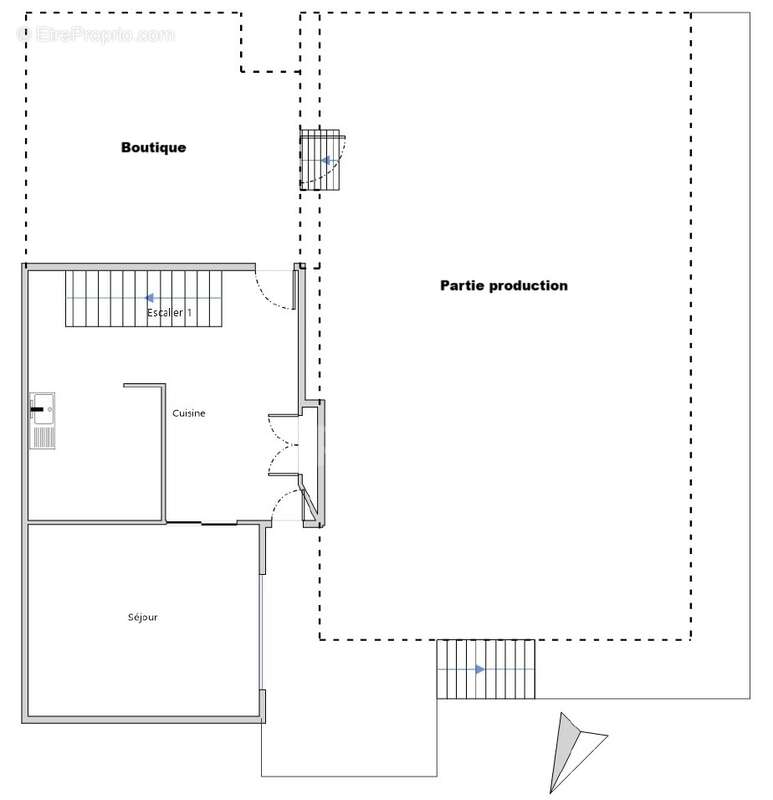
La partie commerciale comprend une boutique rénovée en 2018, d'une surface de 21 m², avec climatisation réversible et façade refaite. À l'arrière, l'ancienne zone de production est équipée d'une chambre froide, partie stockage, d'une douche et d'un WC.

La maison d'habitation se compose, au rez-de-chaussée, d'une cuisine aménagée et d'une salle à manger ouvrant sur une terrasse avec vue sur le Dué. À l'étage, vous trouverez trois chambres, dont deux en enfilade, une salle d'eau et des WC séparés.

Le bien dispose également d'une cave voûtée et d'un jardin agréable offrant un cadre appréciable.

Ce bien est idéal pour un projet professionnel, artisanal ou pour un investisseur souhaitant créer deux logements distincts. Des travaux sont à prévoir.

N'hésitez pas à me contacter pour toute demande ou visite.

----------------------------------------

Vous devez vendre votre bien avant d'acheter ? Faites évaluer votre propriété gratuitement et sans engagement pour déterminer sa juste valeur. Ensemble, nous définirons la meilleure stratégie de vente et une ligne de conduite claire et précise pour optimiser votre projet. Les honoraires sont à la charge du vendeur.
Les informations sur les risques auxquels ce bien est exposé sont disponibles sur le site Géorisques : www. georisques. gouv. fr.

Réseau Immobilier CAPIFRANCE - Votre agent commercial (RSAC N°927 574 160 - Greffe de LE MANS) Karim TETEREL Entrepreneur Individuel [Coordonnées masquées] - Réf.917140
Voir plus

Référence: 340931513612
Honoraires à la charge du vendeur.
DPE
A
B
C
D
E
F
G
GES
A
B
C
D
E
F
G

Prêt immobilier

Vous souhaitez connaître votre capacité d’emprunt et trouver le meilleur crédit immobilier ?
Réaliser une simulation gratuite

Maison à CONNERRE
Maison à CONNERRE
Maison à CONNERRE
Maison à CONNERRE
Maison à CONNERRE
Maison à CONNERRE
Maison à CONNERRE
Maison à CONNERRE
Maison à CONNERRE
Maison à CONNERRE
Maison à CONNERRE
Maison à CONNERRE
Maison à CONNERRE
Maison à CONNERRE
Maison à CONNERRE
Maison à CONNERRE
Maison à CONNERRE
Maison à CONNERRE
Ce site est protégé par reCAPTCHA la Politique de confidentialité et les Conditions d’utilisation de Google s’appliquent.
Obtenir un prêt immobilier au meilleur taux ?

En poursuivant votre navigation sans modifier vos paramètres, vous acceptez l'utilisation de cookies susceptibles de réaliser des statistiques de visite. Cliquez ici pour plus d'informations