Bénéficiez des services de nos partenaires locaux soigneusement sélectionnés
pour vous accompagner dans votre parcours d'achat immobilier

Appartement

— Saint-Brieuc 22000 —
149 000 €
76 m²
3 pièces
parking

Nos partenaires locaux
EXCLUSIVITÉ EFFICITY – 22200 SAINT-BRIEUC – QUARTIER LE POINT DU JOUR – APPARTEMENT T3 ENTIÈREMENT RÉNOVÉE – SURFACE HABITABLE 76 M² – CAVE – BALCON – CALME.

DE RETOUR En exclusivité, je vous propose ce bel appartement plein de charme situé dans un quartier calme, à proximité des lignes de bus. 10 min du centre-ville et de la gare.
Appartement COUP DE CŒUR.

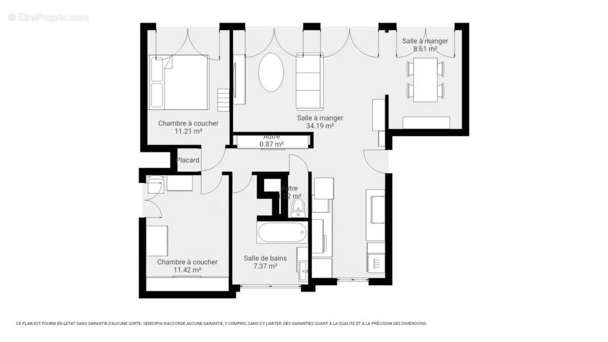
L'appartement situé au 2e étage est agencé de la manière suivante :

- Une pièce de vie (27 m2). Vous y trouverez également un accès au balcon.
- Une cuisine (9 m2) aménagée.
- Des toilettes indépendantes.
- Un couloir qui dessert l'entrée et l'espace nuit. Un grand placard y est aussi accessible.
- Une salle de bain (7,3 m2) comprenant une baignoire / douche, un meuble vasque et un espace de rangement.
- Une première chambre (11,4 m2) avec un espace de rangements.
- Une seconde chambre (11,2 m2).
- Un escalier permet l'accès au rez-de-jardin.

Au sous-sol :

- Une cave est disponible.

Informations complémentaires :
- La production du chauffage est assurée par une chaudière collective gaz.
- La production d'eau chaude est combiné au système de chauffage.
- Les fenêtres sont en double vitrage.
- Le bien est raccordé à la fibre.

UNE VISITE VIRTUELLE EST DISPONIBLE SUR DEMANDE
Les informations sur les risques auxquels ce bien est exposé sont disponibles sur le site Georisque : georisques. gouv. fr
Julien Person - EI - est Agent Commercial mandataire en immobilier, immatriculé au Registre Spécial des Agents Commerciaux du Tribunal de Commerce de Saint-Brieuc sous le n°509174140.
Siège social du mandant : effiCity, 48 avenue de Villiers - 75017 PARIS - Société par Actions Simplifiée, société au capital de 132 373,05 euros, immatriculée au RCS Paris 497 617 746 et titulaire de la Carte professionnelle CPI 75[Coordonnées masquées]02 025 - CCI Paris IDF - Caisse de Garantie : GALIAN Assurances 89 rue de la Boétie 75008 Paris
Voir plus

Référence: 174937
Bien en copropriété. Nombre de lots : 60. Charges de copropriété : 19 €.
Honoraires à la charge du vendeur.
Barème des honoraires
DPE
A
B
C
D
E
F
G
GES
A
B
C
D
E
F
G

Prêt immobilier

Vous souhaitez connaître votre capacité d’emprunt et trouver le meilleur crédit immobilier ?
Réaliser une simulation gratuite

Appartement à SAINT-BRIEUC
Appartement à SAINT-BRIEUC
Appartement à SAINT-BRIEUC
Appartement à SAINT-BRIEUC
Appartement à SAINT-BRIEUC
Appartement à SAINT-BRIEUC
Appartement à SAINT-BRIEUC
Appartement à SAINT-BRIEUC
Appartement à SAINT-BRIEUC
Appartement à SAINT-BRIEUC
Appartement à SAINT-BRIEUC
Appartement à SAINT-BRIEUC
Appartement à SAINT-BRIEUC
Appartement à SAINT-BRIEUC
Appartement à SAINT-BRIEUC
Appartement à SAINT-BRIEUC
Appartement à SAINT-BRIEUC
Appartement à SAINT-BRIEUC
Appartement à SAINT-BRIEUC
Appartement à SAINT-BRIEUC
Appartement à SAINT-BRIEUC
Ce site est protégé par reCAPTCHA la Politique de confidentialité et les Conditions d’utilisation de Google s’appliquent.
Obtenir un prêt immobilier au meilleur taux ?

En poursuivant votre navigation sans modifier vos paramètres, vous acceptez l'utilisation de cookies susceptibles de réaliser des statistiques de visite. Cliquez ici pour plus d'informations